【未央写字楼招商】老三届悦湖,甲方直租-商务聚集-楼层平面图-商业金街-位置!
搜狐焦点西安站 2026-01-29 10:22:11
用手机看
扫描到手机,新闻随时看
扫一扫,用手机看文章
更加方便分享给朋友
西安「老三届悦湖」租售中心:029-88866618(咨询中心)项目地址:029-88866618(致电发送详情地址)【老三届悦湖】服务热线TEL:029-88866618【咨询中心】了解最新优惠折扣价格——请拨打服务热线…
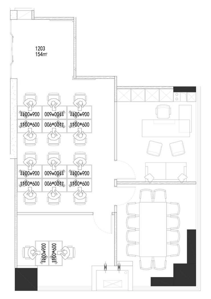
老三届悦湖 1203
面积:154平米
格局:3+12人工位
物业费:10.7 空调自控
13层整层配备会议室 茶室 多媒体室 户外休闲区 免费预约使用
声明:本文由入驻焦点开放平台的作者撰写,除焦点官方账号外,观点仅代表作者本人,不代表焦点立场。
