西安中国铁建·西派逸园怎么样?西派逸园周边配套详情,户型图解析!
扫描到手机,新闻随时看
扫一扫,用手机看文章
更加方便分享给朋友
不是房地产市场冷了,而是没有竞争力的楼盘市场冷了。没有永远热销的市场,但永远有项目在热销。
在西安一些楼盘长吁短叹卖不动的时候,就有少部分项目以显著优势逆势热销, 走出独立行情,比如城东区域的红盘——中国铁建·西派逸园。
1、央企中国铁建实力操刀中国铁建·西派逸园,由世界500强中国铁建全资子公司中铁一院开发打造。中国铁建无须赘述,它是全球最具实力、最具规模的特大型综合建设集团之一,成功打造过迪拜蓝天酒店、中国天眼等多个世界地标,影响力有目共睹。中铁一院作为其全资子公司,实力自然也非同凡响。中铁一院成立于1953 年,总部就设在西安,其是新中国成立的第一批大型综合性铁路勘察设计单位,企业综合实力位于全国勘察设计百强前列。经过多年沉淀,中铁一院已在多个城市形成了自己的标杆产品。比如成都的中国铁建·西派浣花,兰州的中国铁建·逸品华府,太原的中国铁建·花语堂以及西安的中国铁建·西派国际等。而在这其中,因对城市核心位置、土地、资源以及高净值人群的绝对占据,“西派系”高端产品成为最受市场青睐的存在。中国铁建·西派逸园,就是中铁一院在西安打造的又一个“西派系”高端项目。
2、产品,迭代新升级在延续“西派系”产品优质基因的基础上,2023年,中国铁建·西派逸园项目重磅入市。在产品打造上,大胆创新、不惜成本。从建筑外立面到艺术园林规划,从社区打造到户型设计,每一个细节,都认真诠释着项目的品质。中国铁建·西派逸园占地约101亩,规划有16栋住宅(高层+小高层),户型面积约102-168㎡,可满足不同购房者的置业需求。

项目建筑设计由享誉业界的上海同济打造,上海中心、上海自然博物馆等地标性建筑皆出自其手。项目为公建化外立面,大量使用“高端铝板+浅蓝色玻璃”,辅助横向腰线线条,在色彩上使用浅灰色和米白色,将艺术的美感和建筑的气韵完美结合,“颜值”爆表。

外立面之余,项目在园林打造上同样追求卓越。项目特聘打造过西安多个豪宅产品景观(如招商西安序、自然界河山)的顶级名家山水比德团队进行景观设计,将全龄段活动空间和社区景观完美呈现。
此外,项目还设计有风雨连廊和泛会所,皆是彰显品质的配套,即使闭门不出也能通过落地大窗观赏到绝美景致。3、珍稀资源—左手名校 右手河景中国铁建·西派逸园择址灞河城市岸线200米处,灞桥生态湿地公园旁,生态环境优越,可享一线河景。项目自带5400㎡幼儿园和约2700㎡商业。
值得一提的是,项目距离名校西安滨河学校(原铁一中滨河学校)仅500米左右,旁边还有31.2亩的教育用地规划,教育资源优渥。左手名校,右手河景,这样的项目想不火都难!优质的资源配套,引来了资本为了分享城市板块红利的狂热追求,与此同时也触发了城东区域的进一步升级。
城东区域的发展,一直备受关注。其在《西安国土空间总体规划(2021-2035)》中,既处在南北走向的国际开放轴,又位于东西走向的丝路发展轴上,地理位置十分重要。

这两年,借势西安东站及东站高架快速路系统的建设,西安城东迎来新的发展契机。众所周知,城东区域目前正以西安东站为核心(西安东站作为西安市“四主一辅”重要的铁路枢纽,是含高铁、普铁、城际、地铁、公交为一体的大型综合交通枢纽)打造高铁东城,而西安东站建设所带来的不仅是运力的提升,还将充分发挥铁路、公路、城市轨道交通作用,形成一体的综合交通枢纽。
除此之外,西安东部区域可凭借这个重大工程,促进产业、资金、人才等向这里集聚,区域发展蝶变指日可待。从城市发展的角度来看,这里将打造出一个集合枢纽引领、门户开放、站城一体化的新型都市区。正是基于对城东区域发展的信心,嗅觉灵敏的开发商们才集中布局于此,助力区域人居品质的进一步升级。中国铁建·西派逸园,就是最具代表性的优等生。中国铁建·西派逸园项目处于城东核心位置,周边有1号线、6号线、9号线以及7号线(规划)四条地铁线路,交通便捷。
学校除了上面提到的西安滨河学校、项目西侧的教育规划用地,还有东城第二小学、东城第六小学、西安市第五十五中学等。商业方面,华东购物广场、华阳城、华夏幸福里购物广场、凯德广场、万达广场(建设中)等大型商业可满足业主的购物需求。此外,三甲医院唐都医院、灞桥区人民医院、西安医学院第二附属医院等高配医疗资源可为业主的健康保驾护航。蓄积潜力的城东区域+醇熟的周边配套+项目自身优势,中国铁建·西派逸园始终保持着居高不下的市场热度。
项目首开产品为1#、11#两栋毛坯小高,均价16907.25元/㎡,面积约为132、143㎡。在竞争最为激烈的143㎡户型中,中国铁建·西派逸园项目设计出了独有的亮点。
建面约132㎡的户型同样为横厅、南北双阳台设计,三室两厅两卫,南向开间达约12.3米,客厅面宽约5.5米,空间开阔采光充足;另外,该户型得房率超过80%,惊喜满满。
目前,项目建面约132、143㎡的房源还有少量在售中。值得一提的是,项目12#高层产品正在登记,仅104套房,目前登记已飘红。
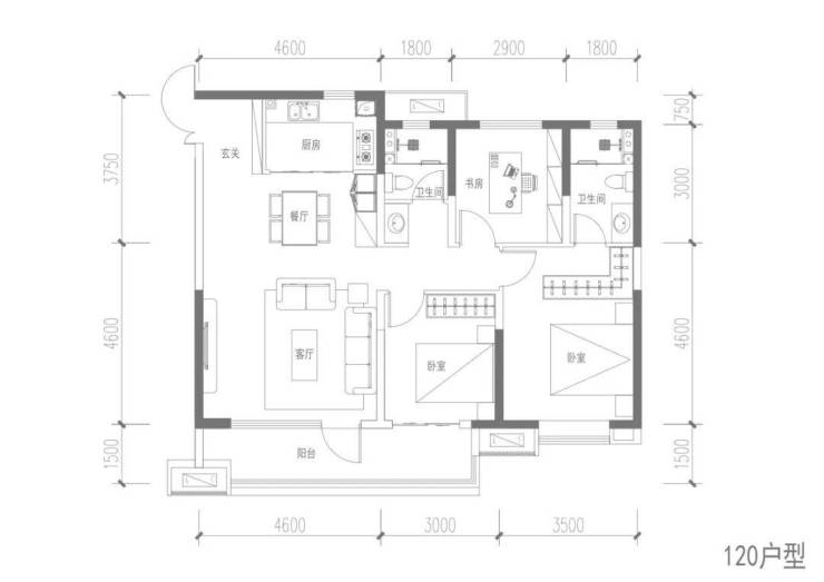
而大家之所以对12#高层产品如此青睐,源于以下原因:1、位置佳,高度适宜。12#位于项目的东北侧,与崔振宽美术馆一路之隔,虽然是高层产品,但总高只有26层,2梯4户设计,居住舒适度较高。2、户型设计考究,面积利好刚需。 12#楼有两个面积,分别是建面约102㎡和建面约120㎡。众所周知,受地价和市场由刚需过渡到改善影响,西安楼市一众项目的价格水涨船高,户型也是越做越大,100出头的面积在市场上越来越少,而项目12#高层中的一半房源都是102㎡小三室户型。
具体来看,项目建面约102㎡的户型三开间朝南,采光面宽约10米,通风采光俱佳;餐客一体设计,面积约25㎡,方便居家生活;双面宽阳台设计,阳台宽约6米,视野空间开阔;另外,动静分区、公私双卫、干湿分离,最大限度地将空间合理布局,大大提高了使用率。
另一个建面约120㎡的户型,三室两厅两卫设计,南北通透。LDKB一体化设计,将客厅、餐厅、厨房、阳台共处一个开放空间,面积达约 40 ㎡;约4.6 米宽尺客厅,视野开敞,空间舒展。
低门槛上车“西派系”高端产品一个不能忽视的问题,项目正在登记的建面约102㎡户型是广受市场好评的“西派系”高端产品。按照102㎡的面积、1.55万/㎡备案均价、首付3成计算,首付不到50万,就可以上车中国铁建“西派系”高端产品,妥妥的高性价比。

声明:本文由入驻焦点开放平台的作者撰写,除焦点官方账号外,观点仅代表作者本人,不代表焦点立场。
