翰林府(租售中心)|内部优惠|交付时间|小区配套|卖点分析

搜狐焦点西安站 2025-10-13 09:03:00
用手机看
扫描到手机,新闻随时看

扫一扫,用手机看文章
更加方便分享给朋友

西安翰林府售楼处提供全面房源信息,定位高端住宅,周边配套完善,环境优美,品质卓越。

西安「翰林府

售楼处:029-88777792(营销中心)

售楼部地址:029-88777792(致电发送详情地址)

如需了解最新房源信息_在售房源价格_请拨打上方售楼部电话!

翰林府项目品鉴

匠筑|陕西基泰源集团

择址|中国·国家级·西安经济技术开发区

都会|一路之隔中小学规划用地,名校、名师加持距4号线元朔路地铁口仅200米,纵享立体交通合生汇(规划中)、熙地港、大融城等繁盛商业资源集萃

场域|总占地约30亩

规制|8栋小高+3栋商业配套

栖境|约2.6容积率、35%绿化率

奢逸|全系一梯一户纯粹领地、南北三阳台赏景

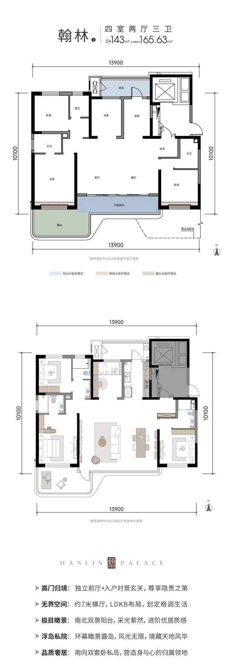
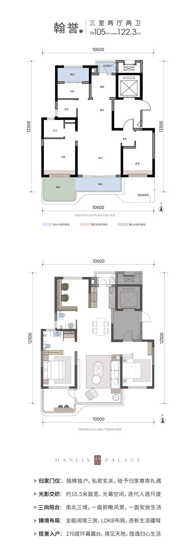
著品|建面约105-143m超四代森境住区

扎根榆林 深耕西安

聚焦高端住宅建设,2021年品牌进驻房产开发领域从拿地到建设,实现完全自有资金运作模式,“0融资、0负债、0杠杆”,实力稳健,行稳致远。

全时医疗

西安市儿童医院经开院区、西安市红会医院北院区未央区中医医院(在建)等

丰富医疗资源加持,营造舒心健康之享

学府优教 筑基未来

文教胜地,起笔人文新章。一路之隔中小学规划用地,名校、名师加持,构筑教育资源的“硬核引擎”项目周边经开系学府环同,经开第十三小学、经开第十四小学、经开第一学校、经开第二学校、经开第六中学,近距优渥教育资源,厚载学识底蕴。

低密·以简驭繁 六大森境

以简驭繁,规划容积率仅约2.6的纯粹小高住区,极致纯粹,造诣舒居之享。社区内部打造“翰林甲第六大主题森境”,递进式漫享空间,一步一景、鲜氧充盈,写意人生的诗意画卷。

第一家通过ISO900国际质量管理体系认证物管企业

中国首批获得一级资质的物业管理企业

连续10年蝉联中国物业管理综合第一

荣获“2024中国住宅物业服务力优秀企业TOP1

“2024年新质物业品牌价值TOP1”翰林府户型鉴赏】

翰林府户型鉴赏

【翰林府】售楼处TEL:029-88777792【售楼中心】

了解最新优惠折扣价格——请拨打售楼处

声明:本文由入驻焦点开放平台的作者撰写,除焦点官方账号外,观点仅代表作者本人,不代表焦点立场。