1.9万/㎡!高新旁128套稀缺准现房加推,手慢无!
扫描到手机,新闻随时看
扫一扫,用手机看文章
更加方便分享给朋友
对于楼市而言,真正的大考不是销售,而是交付。
特别是这两年,购房者对于房屋施工进度的质疑和焦虑不断累积,而房子能否交付,正在成为整个地产行业较大的“痛点”。
就在近日,有读者建议我们去奥园和悦府看一下施工进度。
带着这些问题,小编走进了项目的施工现场,给大家带来一手消息。
开发商少有咨询预约看房热线 :18392385956(中介勿扰)
欢迎来电,专业一对一热情服务,到访售楼部需提前预约,暂不接受临时到访,看房请提前预约并带好口罩。
PART.01
工地实探,现场多图直击!
早上10点,小编来到了奥园和悦府售楼部门口。
沿售楼部向南走,可以看到小区内12栋住宅已经全部封顶,但1#(未销售)的脚手架、工程绿网未拆除,3#(未销售)的塔吊还矗立在楼边。
▲1#、3#实拍图
外立面整体呈现毛坯状态,靠近西沣一路的高层,进度明显要快一些。

▲6#、7#实拍图
部分楼栋的铝合金窗框已经安装完成,有工人站在悬挂吊篮上,进行外墙保温施工,有的则在喷涂真石漆。
▲外立面施工实拍图
随后,小编在工地出入口观察了半小时,期间有工人及拉防水材料的车辆进出。
▲堆砌的施工材料
站在路边,也能明显听到锤击敲打的轰鸣声,以及电钻、切割机发出的刺耳声音。
外部呈现出施工的状态,那么,里面情况如何?
说明来意后,我们在安全员的带领下进入到了工地内部。
大门一进来,就看到工人们忙碌的人影。
▲工人在准备材料
他们有的在搬运建材用料,有的对地库顶部进行防水处理,还有的在焊接管网或切割板材......总之,目之所及到处都是一片繁忙的景象。
▲车库顶部防水施工
据安全员介绍,项目外立面、路面硬化、管网施工有序推进中,水电、木工、装修等人员都已进场,5#、9#、10#、11#、12#样板间基础装修已完成。
期间小编也跟工地的师傅闲聊,他透露:“现在早上7、8点就正常上工了,最近主要在做外立面和部分精装施工”。
除了房子,众多业主还关心配建的学校和商铺建设进度。
小编走访了解到,规划的教育用地地面已经平整,幼儿园盖至二层,15#、17#商铺主体结构已经封顶,14#、16#商铺则在进行基础施工。
▲项目航拍图
至于何时交房,小编去售楼处也打探了一番。
置业顾问表示,之前因为十四运、疫情等问题,进度有所停滞,但在奥园集团合理铺排资金调度下,今年三月就已克服疫情、用工荒等客观影响,实现全面复工。
与此同时,针对前期工程进度滞后的问题,项目已重新排布施工计划表,每月会给业主发送现场照片和进度,保障年底交付如期完成。
PART.02
配套完善,尽享繁华便利!
和悦府作为奥园集团在西安的重点项目之一,位于南三环与子午大道东南角。
其特殊的地理位置,可享受高新锦业路、曲江CCBD、长安大学城三大板块带来的优质资源。
▲项目区位图
立体路网:项目紧邻南三环、绕城高速、子午大道等城市主干道,周边有多条公交线路围绕,可轻松畅达全城。
不仅如此,奥园和悦府距在建的地铁8号线丈八路站约2公里,待批复的地铁7号线也会经过项目,未来业主通勤将非常方便。
公园为邻:一路之隔是占地约1700亩的雁南公园。内嵌森林湿地、绿色台塬坡谷、露天球场等休闲空间,家人嬉戏、林间漫步,观景游憩,在这里皆可满足。

▲雁南公园实拍图
商业荟萃:南边是宜家荟聚(在建)、金地广场,北侧约1公里是立丰城市生活广场,商业环伺,享轻奢小资日常。
▲宜家荟聚效果图
名校环伺:项目周边有雁塔二中、艺林小学、西北工业大学附属小学(融侨分校)、西安雁塔金泰假日花城小学等,可涵盖15年教育。
医疗护航:附近已建成的医院有兵器工业五二一医院、西安市第八医院、西安交通大学排名前列附属医院等,可为业主健康保驾护航。

▲兵器工业五二一医院 图源网络
双地铁、公园物业、商业环绕、再加上齐全的教育、医疗配套,可以说奥园和悦府具有极高的价值属性和抗跌性。
PART.03
准现房!打造优质人生!
当然,说了这么多,我们终究要回到项目本身。
奥园和悦府总占地约100亩,规划12栋奢居大平层。
▲项目鸟瞰图
从置业顾问处了解到,目前1#、3#、8#、7#待售,建面约168-320㎡,保证了改善居住的舒适度。
不过这还只是“前菜”,接下来的亮点,容我一一拆解。
1、准现房,安全感十足
相比期房,周期短、交房快,稳定系数更高的准现房,倍受购房者青睐。
奥园和悦府待售的四楼栋,均已封顶,未来的社区生活有了触摸的质感,大大增强了买房人的“安全感”。
▲项目效果图
2、约71-100米超宽楼间距,让生活与风景“坦诚相见”
即将加推的四栋楼,位置优质。比如,刚刚公示备案价的3#,北侧无遮挡,南侧与后排楼栋呈现约71米的间距,实现室内全明采光格局。
此外,作为楼王的7#,约100米的楼间距更令人惊叹。
疏朗开阔的空间,降低了楼与楼之间的遮挡,阳光直射>8小时,则营造出了自然的生活意境。
3、户型纯粹,2T2户,南北双阳台
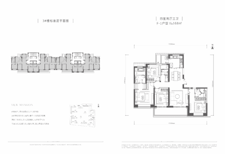
建面约168㎡的奢阔四房,是一款成长性颇高、一步到位的改善户型!

▲约168㎡户型图
2T2户设计,私享电梯入户,四开间朝南,保证采光充足。
南向卧室和客厅连通约7.4米“跑道式”阳台,不仅加强了空间感,还能容纳更多的清风、阳光。
客厅餐厅一体化,使得空间更加奢阔敞亮,同时还可以提高会客、就餐空间的灵活性。
双套房设计,让老人房也带有独立卫生间,方便起居。
主卧设置于房子最深处,拥有了优质的私密性,大尺度的瞰景飘窗,提高了睡眠空间的舒适感和主人身份的尊崇感。
北向的房间可以根据家庭成员的变化自由改造。
无论是做男主人的书房,或者孩子的玩具房、琴房,亦或是二宝的卧室,都可臻享生活雅趣。
总的来说,父母在旁、童梦相伴的生活理想,都可以在这个户型空间内觅得!
开发商少有咨询预约看房热线 :18392385956(中介勿扰)
欢迎来电,专业一对一热情服务,到访售楼部需提前预约,暂不接受临时到访,看房请提前预约并带好口罩。
—结语—
方向锚定,大城崛起。
经过半天的实地勘察,结合工人数量、作业环节和材料到场情况来看,业主们可以放心了。
再回头来看这个项目,作为西安罕见的准现房红盘,拥有全维度配套,如今3#即将登记,毛坯均价19055元/㎡,在南部板块新房断供的当下,更是可遇不可求。
声明:本文由入驻焦点开放平台的作者撰写,除焦点官方账号外,观点仅代表作者本人,不代表焦点立场。
