南海高芯悦澜怎么样值得买吗?南海高芯悦澜区域配套分析/项目最新情况
扫描到手机,新闻随时看
扫一扫,用手机看文章
更加方便分享给朋友
南海高芯悦澜是南海集团在西安开发的首个住宅项目,既拥有高新区域成熱配套,又有软件新城的产业支撑,还能亨受到主城区的内陆河带来的生态宜居坏境。总占地约86.22亩,定位其TOP级产品系,计划打造一个健康智慧的高端住宅社区,并与龙湖智慧物业合作。
开发商咨询预约看房热线TEL: 02989612003【售楼中心】
专属置业顾问电话:17030777773(微信同步)
✅提前线上预约可享专车接送

【关于开发商】
香港南海集团,是一家多元化经营的跨国集团公司,以房地产开发运营为核心,辐射医疗医药产业、金融信息产业、及教育产业。多年发展壮大成为享誉国内外的千亿级知名品牌企业。

公司凭借资本雄厚、财务稳健等优势,长期保持“三道红线”全面绿档,纯全资开发,交付力与兑现力长期稳健。当前布局全国16城,已打造32个精品项目,为近40万业主建筑美好生活。
【项目信息】
南海高芯悦澜为香港南海集团在西安开发的首个住宅,致力于打造智慧宜居高端住区。

开发商:陕西天基房地产开发有限公司
项目名称:南海高芯悦澜
项目占地:57480㎡
建筑面积:247666㎡
绿化率:35%
容积率:4.29
总户数:1491户
车位数:2740个
车位比:1:1.8
楼栋数:12栋(27-33层)
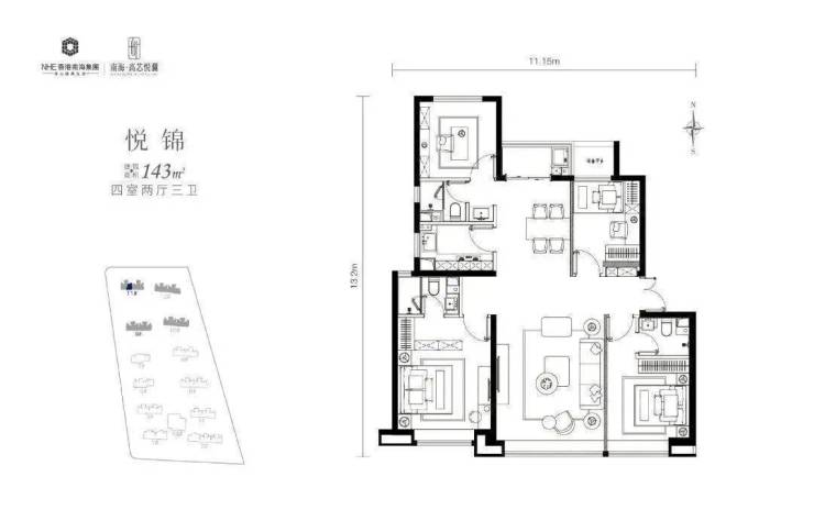
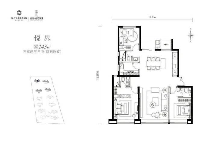
产品面积:143㎡/152㎡/178㎡(2梯2户/2梯3户)
物业公司:西安龙湖物业服务有限公司

项目择水而建,注重仪式感、尊贵感去进行打造,重视多重园林细节,以闽商特有的匠心淬炼,打造立体多维园林景观系统,缔造五重归家礼序:名门之序、迎宾之境、邻里之美、自然之礼、归家之悦。

【项目区位】
项目于科技西路与石驿路交汇处东北角、鱼化寨地铁口,距离丝路软件新城仅一路之隔。

【户型赏析】
【项目配置】
▲教育医疗:项目自身配备幼儿园,北侧约1公里雁塔区公办重点学校—大雁塔小学华洲城分校和雁塔第二学校,提供12年一站式教育环境;项目距高新医院约3.3km,启迪儿童医院约5.1km,安琪儿妇产医院约3.9km,为家人们的健康生活,保驾护航。

▲商业:附近有约15万㎡的大型城市综合体大茂城,对标赛格。附近还有华润万家、都市天街、方圆荟、高新大都荟、世纪金花、T11BLOCK、中大、万达等商业,潮流活力,满足日常逛街、采买等休闲生活需求。

▲生态:项目东侧紧邻贯穿高新区南北的“皂河生态公园”,同时毗邻唐城墙遗址公园,西安人才公园等大型都市生态核心。
开发商咨询预约看房热线TEL: 02989612003【售楼中心】
专属置业顾问电话:17030777773(微信同步)
✅提前线上预约可享专车接送
声明:本文由入驻焦点开放平台的作者撰写,除焦点官方账号外,观点仅代表作者本人,不代表焦点立场。
