奥体中心4个2T2、143㎡起步的“第四代住宅”,该怎么选?优缺点有哪些?
扫描到手机,新闻随时看
扫一扫,用手机看文章
更加方便分享给朋友
港务区奥体板块4个楼盘中国铁建西派麟悦、中粮悦著云轩、鼎诚御峰里、龙翔奥城云玺,同时迎来了价格公示。
同一个板块,都是2T2、143㎡起步的纯改善产品,并且都是“第四代住宅”理念设计,同时迎来价格公示,这对于打算买奥体板块的购房者来说,将面临4选1。那么,这4个盘,你会选择买哪个?
在此,我们不妨从位置、产品等角度,来分析一下这4个项目,各自的优势与短板。
专属咨询电话 TEL: 02989612003
专属置业顾问电话:17030777773(微信同步)
✅预约看房,提前来电,安排专车接送,1v1专业服务,项目分析解读
为了让大家更清楚的了解到这4个楼盘的基本信息、位置,作了一个表格、一张地图,如下表、下图所示。
首先,这4个项目虽然同处奥体板块,但实际上还是有差异的,这种差异主要体现在教育配套方面。
中国铁建西派麟悦、龙翔奥城云玺、鼎诚御峰里地处奥体中心-奥体中央公园以北,“奥北”的教育配套目前主要是铁一中陆港小学、铁一中陆港中学;中粮悦著云轩则位于奥体中心-奥体中央公园以南,“奥南”的教育配套目前主要是高新一中陆港小学、高新一中陆港中学。
对于奔着教育配套置业奥体板块的购房者来讲,大家需要注意的是随着这个板块的在建小区陆续交付之后,目前区域内现有的教育配套能否满足入学需求?这需要打上一个大大的问号。此时,必然会面临学区调整。
“奥北”板块,在鼎诚御峰里东侧、绿城观澜东侧、绿城全运村木兰郡西南角,都规划有教育用地;“奥南”板块,则在杏园新居的东侧,规划有1宗教育用地。
其次,从这4个盘的占地面积、容积率等基本面来看,中国铁建西派麟悦的容积率2.2,很明显容积率更低,在容积率方面占据优势,其余3个项目的容积率则为2.5。
站在这几块地具体位置的角度,中粮悦著云轩东侧紧邻地铁3号线高架,中国铁建西派麟悦北侧紧邻主干道秦汉大道、高铁,必然会对沿着高架、高铁、主干道的楼栋产生一定的影响,这几栋楼相对来说价格要低一点。龙翔奥城云玺、鼎诚御峰里则不存在上述不利因素。
第三,从这几个项目的开发商来讲,中国铁建地产、中粮均为央企,并且是全国性房企,在品牌方面优势更明显;龙翔、鼎诚则为民企,相对来讲在品牌方面要弱一点。

第四,从具体的产品规划来看,中国铁建西派麟悦规划有约195㎡的洋房,其余3个项目则无洋房产品,买洋房的话只能选择中国铁建西派麟悦了;鼎诚御峰里,则是4个项目中唯一一个有140㎡以下产品的,打造有约128/129㎡的小高层,要买140以下户型的只能选择鼎诚御峰里了。
中国铁建西派麟悦、鼎诚御峰里相对来说面积段更丰富一些,龙翔奥城云玺、中粮悦著云轩则只有约143㎡的户型,可选的户型面积段要少一些。

第五,虽然这4个项目都打造的是“第四代住宅”,但实际上还有一定的差异。
中国铁建西派麟悦所打造花园露台是真正拥有花园灌溉体系。简单来说,就是在结构层的上方铺设防水层,防水层的上方有预留的排水层和蓄水层,最后铺设好土壤层,真正实现空中花园的技术要求,可以直接种花种树。
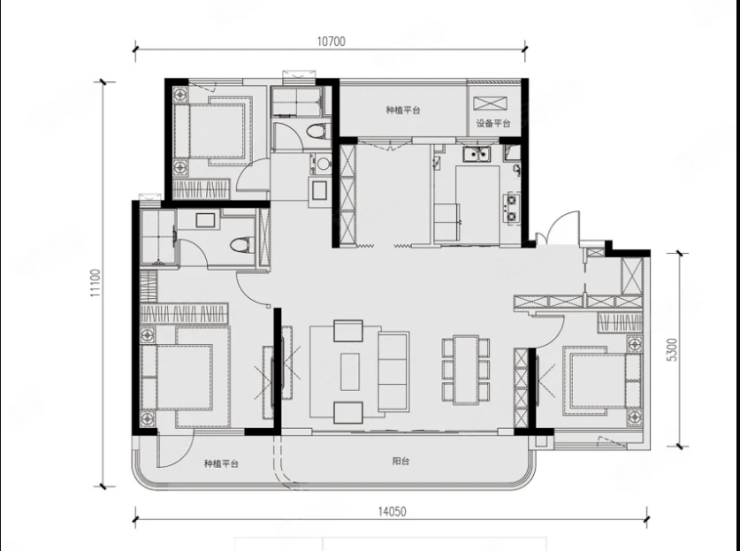
这4个项目,都规划有约143㎡的户型,这个户型面积也是目前西安市场上最内卷的户型,我们不妨对4个项目的这个户型做以对比,看看谁家的户型设计更具竞争力。




这四个项目的143户型,你最喜欢哪一个?
最后,再来看一下价格:同样是小高层,价格最低的是中粮悦著云轩,约1.85万元/㎡,但需要注意的是此次公示价格的4栋楼中2#、4#是挨着地铁高架,这2栋楼的备案均价分别为18406.91元/㎡、18556.52元/㎡。另外2栋楼的备案均价分别为18741.21元/㎡、18869.63元/㎡。
龙翔奥城云玺这次公示价格的3栋楼,有1栋楼均价19297.26元/㎡,另外2栋楼的均价在1.94万元/㎡,相差不大。
鼎诚御峰里这次公示价格的3栋楼,约128㎡的户型均价19048.86元/㎡,约143㎡、173㎡的户型均价19671.83元/㎡、位于小区中央位置的9#约188㎡的户型均价21799.59元/㎡。
中国铁建西派麟悦首批次公示价格的6栋楼,位于小区最北侧挨着秦汉大道的高层均价18644.37元/㎡、小高层均价19304.95元/㎡,其余3栋小高层的均价分别为20968.76元/㎡、20834.56元/㎡、20778.23㎡,洋房均价23648元/㎡。
专属咨询电话 TEL: 02989612003
专属置业顾问电话:17030777773(微信同步)
✅预约看房,提前来电,安排专车接送,1v1专业服务,项目分析解读
声明:本文由入驻焦点开放平台的作者撰写,除焦点官方账号外,观点仅代表作者本人,不代表焦点立场。
