陆港·海心湾,陆港·海心湾户型解析丨怎么样丨楼盘动态
扫描到手机,新闻随时看
扫一扫,用手机看文章
更加方便分享给朋友
近几年,港务区可以说是各大房企的钟爱之地了,作为国港区的发展见证者,陆港集团旗下的多个住宅项目引人关注。近期紧邻地铁口的陆港·海心湾悄然闯入大众视野。

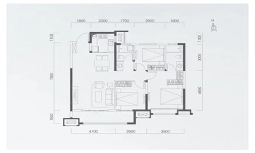
108㎡户型 欢迎参观今天先看看108㎡的房间,该户型三室两厅两卫全明设计,房间入户朝南,整体南北通透,餐客一体,U型厨房配置,主厅动线合理。

客厅南侧连接大阳台,采光视野优秀。阳台连通客厅和南侧次卧,尺度开阔。
全屋动静分区结构,卧室均在东侧,主卧室套房设计,衣帽间、卫生间,南向飘窗,贴心打造舒居生活。
次卧可做儿童房、客房、书房等,灵活搭配。客卫三分离设计,便于使用打理。目前样板间已开放,可以前往售楼部参观咨询。
小高&洋房
品质住区陆港•海心湾项目占地约175亩,分三期开发。其中一期占地约55.6亩,总建筑面积约11.7万㎡,容积率2.2,绿化率35%,车位配比为1:1.2。
总规划13栋住宅,包含4栋洋房和8栋小高层,推出107-143㎡户型产品。建筑采用现代典雅风格,外立面简洁大方,建筑物排布考虑采光和通风性能,社区景观以“一轴一环两府两庭四台八园”为主题,让客户感受到居住的舒适化,品质化。
同时,交付后有项目自持物业提供社区服务,配备智慧停车系统、智能人行通道系统、24小时智慧视频安防系统及高空抛物监控系统等,让业主安心居住。
陆港·海心湾目前主推3、5、7号楼
2023年9月12日讯:陆港·海心湾位于港兴二路与和祥路交叉路口往西约180米,目前主推3、5、7号楼,房源面积为108-143㎡房源,参考均价16905元/㎡,预计2025年4月30日交房,同时在售1、2、6、8、13号楼,面积为108-143㎡房源,整体参考均价16700元/㎡。
声明:本文由入驻焦点开放平台的作者撰写,除焦点官方账号外,观点仅代表作者本人,不代表焦点立场。
