2025租售中心,荣民中央国际▁层高▁环境▁价值分析▁开发商直销
扫描到手机,新闻随时看
扫一扫,用手机看文章
更加方便分享给朋友
西安「荣民中央国际」
售楼处:029-88866618 (营销中心)
售楼部地址:029-88866618 (致电发送详情地址)
在售户型图丨项目详情介绍丨剩余房源丨项目周边配套丨详细在线解答线解答
基本信息
占地面积: 29.21亩
建筑面积: 约19万㎡ ,商业综合体7万㎡,商办3.
总户数: 300户
车位: 439个
物业公司: 自持商业
楼盘价格: 价格待定 周边房价解读
物业类型: 写字楼
区域板块: 城北
产权年限: 40年
开发商: 陕西荣民房地产集团有限公司
楼盘地址: 未央路与玄武路十字东南角地铁2号线大明宫西C口南50米
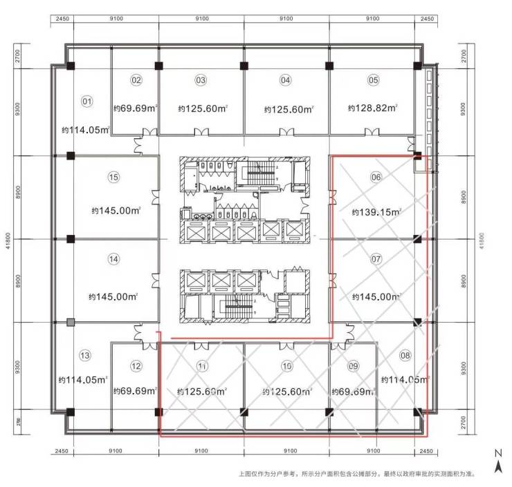
【层高及梯户比】层高3.75m,8T15户;
【外 立 面】双层Low-E中空玻璃,降噪隔音100%防紫外线辐射;
【公 摊】公摊29%公摊率,超高得房率;
【上 下 水】标准层东南角及东北角预留上下水,设置茶歇区;
项目区域配套
【酒店配套】1公里以内赛瑞喜来登、印力诺富特、亚多精选、柏瑞、美豪等多个星际酒店林立,可充分满足企业商旅需求;
【人文配套】东侧800米紧邻城北绿肺大明宫国家遗址公园,国家5A级旅游景区,臻享健康办公环境。
【荣民中央国际】售楼处TEL:029-81777782【售楼中心】
了解最新优惠折扣价格——请拨打售楼处
声明:本文由入驻焦点开放平台的作者撰写,除焦点官方账号外,观点仅代表作者本人,不代表焦点立场。
