(售楼中心)2024绿城桂月云翠→一房一价→开发商介绍→在售户型→卖点分析
扫描到手机,新闻随时看
扫一扫,用手机看文章
更加方便分享给朋友
西安「绿城桂月云翠」
售楼处:029-88777723(营销中心)
售楼部地址:029-88777723(致电发送详情地址)
在售户型图丨项目详情介绍丨剩余房源丨项目周边配套丨详细在线解答
售楼中心_欢迎来电咨询!预约尊享优惠折扣_匠心钜制恭迎品鉴!
如需了解最新房源信息_在售房源价格_请拨打上方售楼部电话!

基本信息
楼盘名称:绿城桂月云翠 在售
楼盘特点:一房一价 三环外 医院 商业街 配套纯熟
参考价格:17425元/m²
物业类型:住宅
开发商:西安鹏诚房地产开发有限公司
区域位置:三环外- 浐灞国际港- 奥体中心
楼盘地址:林泓路与奥体大道交会处
最新开盘:2024年12月5日
交房时间:2026年4月30日
售楼处地址:浐灞国际港林泓路与奥体大道交会处
绿化率:35%
规划户数:835户
工程进度:在建中,竣工时间:2026-04-30

绿城中国立高阶生活
绿城中国,理想生活综合服务商,29载美好深耕,坚持走“全品质、高质量、可持续”发展道路。连续19年荣获“中国房地产百强企业综合实力TOP10,连续13年在“中国城市居民居住满意度”调查中荣获佳绩,连续11年荣获中国房地产顾客满意度领先品牌”
环境方面:项目西侧是灞河水岸,西北侧直线距离是西安浐灞国家湿地公园,南侧是长约7.2公里的西安奥体中央公园,整体来说项目所处区域环境更宜居。
医疗保障三甲医院保驾护航
交大一附院国际陆港医院是于2016年12月在港务区开工建设,占地170亩,建筑面积22万平方米,设计床位1000张,可同时容纳约3000人就诊。陆港医院为港务区内第一所大型综合三级甲等医院。
奥体主轴五纵六横双地铁
奥体大道南接港兴大桥,北接渭河,秦汉大道,东起临潼西至西咸新区,可达杏园立交,新筑立交,直接连同东北三环,绕城高速,3号线保税区站,林溪路站(规划中),10号线(在建)7号线(规划)
山水拥翠诗画长安图景
从唐代王维的《江干雪霁图》自然山水创新灵感,外有“一城山水拥翠”,内仿盛唐九雅意趣,微缩山水、一环九组团营造“人在画中游,画中拾雅趣”的诗画长卷。
东方宫制沁翠书香院落
取大明宫“三朝五门制度”“前宫后苑”之宫制精髓,“唐宫夜宴”璀璨文化之濡养,营造三进院落、四大知学场景,一院一盛景,一步一诗情,每一次归家之旅都是一次文化美育。
2024年,绿城创新营造全维改善新作——绿城桂月云翠,建筑设计取质地出众的翡翠形态,高级灰+香槟金跳色,大尺度窗墙比,形成通透流荧的建筑感官,独具昭示性点亮城市界面。
绿城桂月云翠项目位于奥体大道以西、林泓路以南,土地面积64.921亩(住宅63.361亩,商服1.56亩),土地用途为住宅、商服,容积率2.5,建筑密度≤20%,绿地率≥35%,建筑限高80米。
户型鉴赏
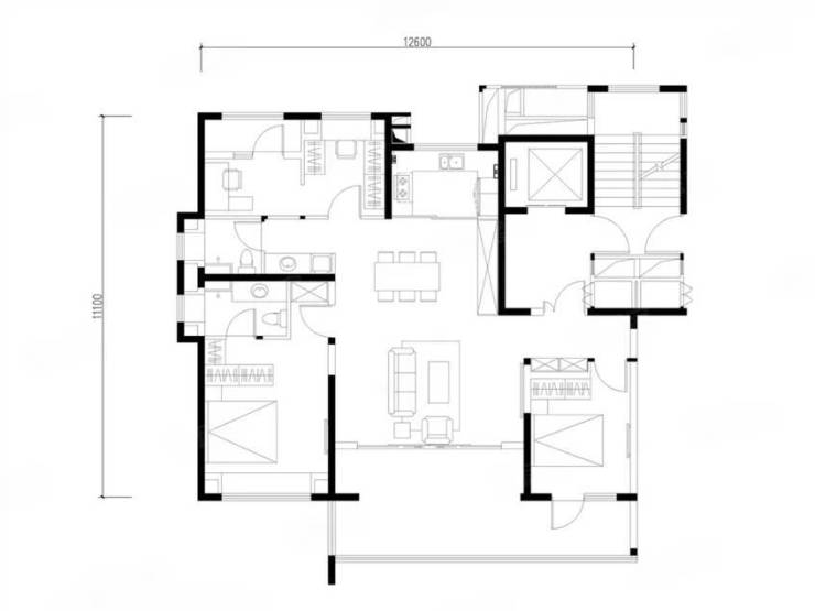
134平奇数4室2厅2卫

134平偶数4室2厅2卫
120平偶数3室2厅2卫
109平偶数3室2厅2卫
【绿城桂月云翠】售楼处TEL:029-88777723【售楼中心】
了解最新优惠折扣价格——请拨打售楼处
声明:本文由入驻焦点开放平台的作者撰写,除焦点官方账号外,观点仅代表作者本人,不代表焦点立场。
