【商铺推荐】荣民中央国际绿城桂月云翠▁二至三环▁位置▁医院▁详细信息
扫描到手机,新闻随时看
扫一扫,用手机看文章
更加方便分享给朋友
西安「荣民中央国际」
售楼处:029-88866618 (营销中心)
售楼部地址:029-88866618 (致电发送详情地址)
基本信息
楼盘名称:荣民中央国际
规划户数:300户
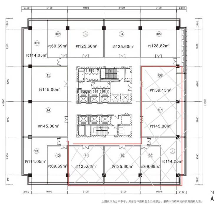
标准层面积:1700-0m²
楼层状况:24层
物业公司:陕西荣民物业服务有限公司
车位数:439
楼盘特点:二至三环 甲级写字楼 配套纯熟 公园 医院
参考价格:15500元/m²
物业类型:办公楼
写字楼类型:标准写字楼
写字楼级别:甲级
开发商:陕西荣民房地产集团有限公司
区域位置:二至三环- 未央区- 大明宫
楼盘地址:未央路与玄武路十字东南角地铁2号线大明宫西C口南50米
【空 调】东芝品牌VRV多联空调系统,分户计费运行成本低;
【电 梯】配备8部蒂森克虏伯电梯,最长候梯时间仅为35S;
【公 摊】公摊29%公摊率,超高得房率;
【上 下 水】标准层东南角及东北角预留上下水,设置茶歇区;
项目区域配套
【商业配套】近邻荣民龙首广场,印象城,盛龙广场、荣民时代广场、世纪金花、熙地港、大融城等多个购物中心,全方位满足企业商务生活需求;
【政务配套】未央区政府、西安市政府、未央区税务大厅、未央区教育局、陕西省工商管理局、陕西工商税务局、西安市档案局等10余家政府机关分布于项目2公里以内,为企业提供优质的政务关系网;
【荣民中央国际】售楼处TEL:029-81777782【售楼中心】
了解最新优惠折扣价格——请拨打售楼处
声明:本文由入驻焦点开放平台的作者撰写,除焦点官方账号外,观点仅代表作者本人,不代表焦点立场。
