(租赁中心)西安商铺翰林府|内部优惠|基础信息|周边配套|售楼处电话

搜狐焦点西安站 2025-10-16 06:06:00
用手机看
扫描到手机,新闻随时看

扫一扫,用手机看文章
更加方便分享给朋友

西安翰林府项目位于经开开发区,近享名校资源,交通便利,低密宜居,品质高端,主打高端住宅。

西安「翰林府

售楼处:029-88777792(营销中心)

售楼部地址:029-88777792(致电发送详情地址)

翰林府项目品鉴

匠筑|陕西基泰源集团

择址|中国·国家级·西安经济技术开发区

都会|一路之隔中小学规划用地,名校、名师加持距4号线元朔路地铁口仅200米,纵享立体交通合生汇(规划中)、熙地港、大融城等繁盛商业资源集萃

场域|总占地约30亩

规制|8栋小高+3栋商业配套

栖境|约2.6容积率、35%绿化率

奢逸|全系一梯一户纯粹领地、南北三阳台赏景

著品|建面约105-143m超四代森境住区

扎根榆林 深耕西安

聚焦高端住宅建设,2021年品牌进驻房产开发领域从拿地到建设,实现完全自有资金运作模式,“0融资、0负债、0杠杆”,实力稳健,行稳致远。

学府优教 筑基未来

文教胜地,起笔人文新章。一路之隔中小学规划用地,名校、名师加持,构筑教育资源的“硬核引擎”项目周边经开系学府环同,经开第十三小学、经开第十四小学、经开第一学校、经开第二学校、经开第六中学,近距优渥教育资源,厚载学识底蕴。

便捷交通

地铁2、12号线(规划中)环伺距4号线元朔路地铁口仅200米西安北站约800米,多维立体路网,纵横驰骋,畅连全城

低密·以简驭繁 六大森境

以简驭繁,规划容积率仅约2.6的纯粹小高住区,极致纯粹,造诣舒居之享。社区内部打造“翰林甲第六大主题森境”,递进式漫享空间,一步一景、鲜氧充盈,写意人生的诗意画卷。

超享·贴心真挚的品质服务万科物业 品牌物管

万科物业成立于1990年,是万物云空间科技服务股份有限公司(简称万物云,是万科企业股份有限公司下属控股子公司)旗下品牌。作为中国物业管理行业的领跑者,“社区、商企、城市空间服务”三驾马车齐驱,以上市物管之专业,让更多用户体验物业服务之美好。

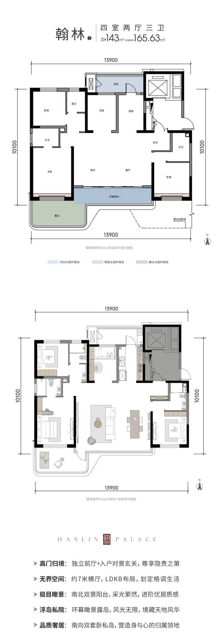
翰林府户型鉴赏

【翰林府】售楼处TEL:029-88777792【售楼中心】

了解最新优惠折扣价格——请拨打售楼处

声明:本文由入驻焦点开放平台的作者撰写,除焦点官方账号外,观点仅代表作者本人,不代表焦点立场。