2025年在售商铺-翰林府|内部优惠|交付时间|最新动态|开发商推广直售
扫描到手机,新闻随时看
扫一扫,用手机看文章
更加方便分享给朋友
西安「翰林府」
售楼处:029-88777792(营销中心)
售楼部地址:029-88777792(致电发送详情地址)
在售户型图丨项目详情介绍丨剩余房源丨项目周边配套丨详细在线解答

翰林府项目品鉴
匠筑|陕西基泰源集团
择址|中国·国家级·西安经济技术开发区
都会|一路之隔中小学规划用地,名校、名师加持距4号线元朔路地铁口仅200米,纵享立体交通合生汇(规划中)、熙地港、大融城等繁盛商业资源集萃
场域|总占地约30亩
规制|8栋小高+3栋商业配套
栖境|约2.6容积率、35%绿化率
奢逸|全系一梯一户纯粹领地、南北三阳台赏景
著品|建面约105-143m超四代森境住区
超核·繁华丰盛的都会生活政经核心 繁盛集萃
世界西安所向,仅此珍贵厚壤。翰林府立序经开区核心贵脉--政经核心圈,项目周边交通、商业、医疗、自然、产业等全系资源集粹,美好丰盈,引领一城璀璨。
自然禀赋
渭河自然景观带、西安湖、紫薇湖、文景山公园北站站前公园集萃绿意环伺,鲜氧弥漫,封藏自然谧境
多元产业
区域内汇聚超7万家企业,外资企业400家世界500强近百个央企龙头200家、创新型中小企业数千家产业兴城,擎起时代未来
形意·流光云翼 东方美学
以国际前沿建筑语汇,塑造时尚隽永的公建化美学立面,立面形制取意“翰林学士帽”,配建low-e中空玻璃窗幕+金属铝板+白色真石漆,轻盈、通透,演绎现代东方美学的艺术坐标。
质感·奢感公区 精工筑境
匠心哲思产品细节,采用国际一线品牌,凝练居住美学的隐奢。打造精装归家大堂、品质地库、电梯间等,超配规制,奢华入微,为时代层峰营造极具品质感的居住体验。
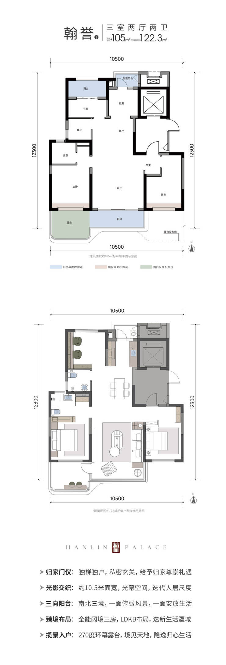
翰林府户型鉴赏
【翰林府】售楼处TEL:029-88777792【售楼中心】
了解最新优惠折扣价格——请拨打售楼处
声明:本文由入驻焦点开放平台的作者撰写,除焦点官方账号外,观点仅代表作者本人,不代表焦点立场。
