保利锦上商铺(租赁中心)▁服务热线电话▁在售户型▁开发商推广直销▁特价房

搜狐焦点西安站 2026-01-23 20:27:00
用手机看
扫描到手机,新闻随时看

扫一扫,用手机看文章
更加方便分享给朋友

保利锦上位于西安港务区,占地144.2亩,主打108㎡-128㎡户型,周边配套齐全,近奥体中轴公园,是高端住宅项目。

西安「保利锦上」

服务热线:029-88777723(咨询中心)

项目地址:029-88777723(致电发送详情地址)

在售户型图丨项目详情介绍丨剩余房源丨项目周边配套丨详细在线解答

如需了解最新房源信息_在售房源价格_请拨打上方服务热线电话!

『项目基础信息』

项目基础信息

项目名称:保利锦上

项目地址:西安市港务区港兴三路与和泰路交汇处总

总占地面积:总占地144.2亩,南区约48.8亩,北区约95.4亩

总建面:33.81㎡

容积率:2.5

绿地率:35%

物业类型:小高、高层

车位配比:1.1.36

装修情况:毛坏2008户,南区616户,北区1392户

总户数主力:户型108㎡、128㎡

作为西安重点打造区域,2017年,国际港务区有111个重大项目及配套设施开建。沿着一条约7.2公里的奥体中轴公园,南北一公里之内,千亿资源配套已经呈现!(地铁3号线&14号线、奥体中心“一场两馆”、8大央企总部、迈科金融小镇、万象城城市综合体、铁一中一小……)

总部经济中心:项目西南侧即为总部经济区,汇聚招商局、中国电建、华润、中冶、绿城等10大企业总部,目前已全面建成,进入招商运营阶段!

【配套篇】—— 全维度配套 构建逸享生活

生态

保利锦上周围七大公园环伺,奥体中轴生态公园(在建)、启航公园、新寺遗址公园、陆港足球主题运动公园、全运湖公园、4A级浐灞国家湿地公园、社区公园(在建),打造城市绿肺,拥抱鲜氧生活。

云视频对讲功能

地下智能停车服务

『项目产品』

北区3栋(7# 9# 11# ),共计约248套房源,层高18F、22F,2梯4户,主力户型建面约108㎡/128㎡

公摊:18%-21%

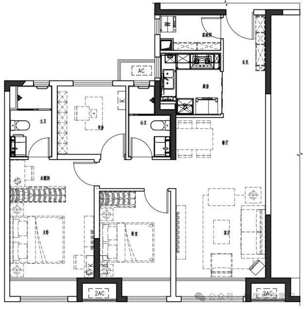
『主力户型』

108㎡—3室2厅2卫+家政间

128㎡—3+1室2厅2卫(5.4米大宽厅)

【保利锦上】服务热线TEL:029-88777723【咨询中心】

了解最新优惠折扣价格——请拨打服务热线

声明:本文由入驻焦点开放平台的作者撰写,除焦点官方账号外,观点仅代表作者本人,不代表焦点立场。