2025西安保利锦上商铺▁一房一价▁售楼处销控▁楼盘动态▁五证齐全

搜狐焦点西安站 2025-10-09 22:09:00
用手机看
扫描到手机,新闻随时看

扫一扫,用手机看文章
更加方便分享给朋友

西安保利锦上项目位于三环外,三房朝南,一房一价,临近奥体中心,交通便利,配套齐全。

西安「保利锦上」

售楼处:029-88777723(营销中心)

售楼部地址:029-88777723(致电发送详情地址)

基本信息

楼盘名称:保利·锦上 在售

楼盘特点:一房一价 三环外 大型社区 南北通透 三房朝南

参考价格:15500元/m²

物业类型:住宅最新开盘:2024年11月30日

开发商:西安荣骏置业有限公司

区域位置:三环外- 浐灞国际港- 政经

楼盘地址:港兴三路与和泰路交汇处

『区域篇』——西安东部新中心

国际港务区成立于2008年,是国内第一个不沿江、不沿海、不沿边的国际内陆港,同时也是首个拥有国内国际双代码的港口。是陕西省、西安市为打造内陆改革开放新高地而设立的经济先导区。

资源集合中心:项目近邻奥体中心核心区,为奥体中心板块与政经板块的交汇中心,可享受两大板块带来的丰盛配套资源!

交通——便捷立体交通 尽享主城繁华

区域内规划3条地铁线路,贯穿城市东西的地铁3号线,连接奥体中心、北客站及咸阳国际机场的地铁14号线,以及正在建设连接主城区与渭河北岸的轨道交通快线10号线。地铁14号线港务大道站,地铁14号线与3号线于双寨站零距离换乘;

项目港兴路、近距北三环、绕城高速,距离西安行政中心和北客站仅十分钟车程,距咸阳国际机场仅28公里。

云视频对讲功能

地下智能停车服务

『项目产品』

北区3栋(7# 9# 11# ),共计约248套房源,层高18F、22F,2梯4户,主力户型建面约108㎡/128㎡

公摊:18%-21%

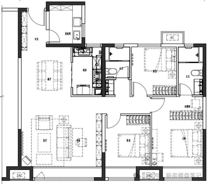
『主力户型』

108㎡—3室2厅2卫+家政间

128㎡—3+1室2厅2卫(5.4米大宽厅)

【保利锦上】售楼处TEL:029-88777723【售楼中心】

了解最新优惠折扣价格——请拨打售楼处

声明:本文由入驻焦点开放平台的作者撰写,除焦点官方账号外,观点仅代表作者本人,不代表焦点立场。