【未央区商铺】翰林府|热搜盘|基础信息|最新动态|售楼处电话

搜狐焦点西安站 2025-10-14 12:00:00
用手机看
扫描到手机,新闻随时看

扫一扫,用手机看文章
更加方便分享给朋友

翰林府位于西安经济技术开发区,集居住、商业、教育、医疗于一体,打造高品质宜居社区。

西安「翰林府

售楼处:029-88777792(营销中心)

售楼部地址:029-88777792(致电发送详情地址)

在售户型图丨项目详情介绍丨剩余房源丨项目周边配套丨详细在线解答

翰林府项目品鉴

匠筑|陕西基泰源集团

择址|中国·国家级·西安经济技术开发区

都会|一路之隔中小学规划用地,名校、名师加持距4号线元朔路地铁口仅200米,纵享立体交通合生汇(规划中)、熙地港、大融城等繁盛商业资源集萃

场域|总占地约30亩

规制|8栋小高+3栋商业配套

栖境|约2.6容积率、35%绿化率

奢逸|全系一梯一户纯粹领地、南北三阳台赏景

著品|建面约105-143m超四代森境住区

超群·实力稳健的至诚匠人源启向上 行稳致远

多元格局 基业磐石

能源发电能源为基,驱动绿色发展

仓储物流布局未来,打造全产业链

金融投资稳健投资,共启成功之源

地产开发匠心筑家,造诣人居标杆

教育科技智慧引领,培育创新力量

全时医疗

西安市儿童医院经开院区、西安市红会医院北院区未央区中医医院(在建)等

丰富医疗资源加持,营造舒心健康之享

学府优教 筑基未来

文教胜地,起笔人文新章。一路之隔中小学规划用地,名校、名师加持,构筑教育资源的“硬核引擎”项目周边经开系学府环同,经开第十三小学、经开第十四小学、经开第一学校、经开第二学校、经开第六中学,近距优渥教育资源,厚载学识底蕴。

超配·精心雕琢的人居之境品质筑善 府系奢境

翰林府,基泰源集团运营化后地产开发人居首作,以远见择地、低密规划、创新产品、人文滋养,造诣“府”系进阶人居,品质匠呈,共鸣当代家庭的心中阔境。

超享·贴心真挚的品质服务万科物业 品牌物管

万科物业成立于1990年,是万物云空间科技服务股份有限公司(简称万物云,是万科企业股份有限公司下属控股子公司)旗下品牌。作为中国物业管理行业的领跑者,“社区、商企、城市空间服务”三驾马车齐驱,以上市物管之专业,让更多用户体验物业服务之美好。

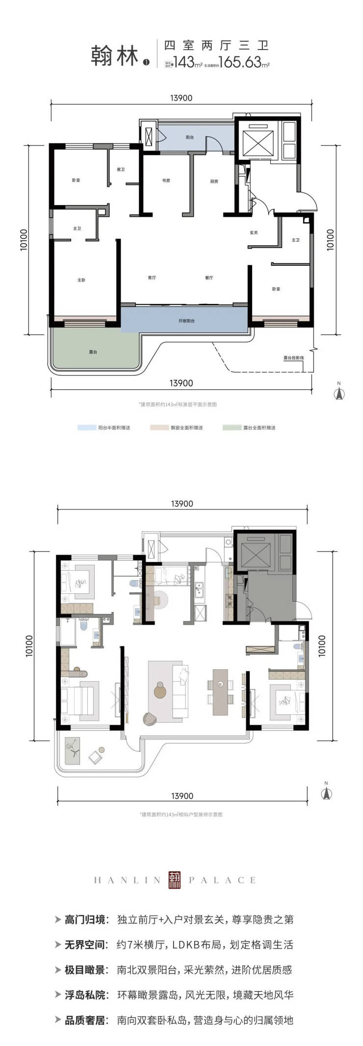
翰林府户型鉴赏

【翰林府】售楼处TEL:029-88777792【售楼中心】

了解最新优惠折扣价格——请拨打售楼处

声明:本文由入驻焦点开放平台的作者撰写,除焦点官方账号外,观点仅代表作者本人,不代表焦点立场。