2025年在售商铺-翰林府|热搜盘|交付时间|最新动态|开发商推广直售

搜狐焦点西安站 2025-10-08 13:09:00
用手机看
扫描到手机,新闻随时看

扫一扫,用手机看文章
更加方便分享给朋友

西安翰林府售楼处提供项目详情、周边配套及优惠信息,打造高端住宅社区,融合自然与商业资源,注重品质与舒适生活。

西安「翰林府

售楼处:029-88777792(营销中心)

售楼部地址:029-88777792(致电发送详情地址)

在售户型图丨项目详情介绍丨剩余房源丨项目周边配套丨详细在线解答

售楼中心_欢迎来电咨询!预约尊享优惠折扣_匠心钜制恭迎品鉴!

如需了解最新房源信息_在售房源价格_请拨打上方售楼部电话!

翰林府项目品鉴

匠筑|陕西基泰源集团

择址|中国·国家级·西安经济技术开发区

都会|一路之隔中小学规划用地,名校、名师加持距4号线元朔路地铁口仅200米,纵享立体交通合生汇(规划中)、熙地港、大融城等繁盛商业资源集萃

场域|总占地约30亩

规制|8栋小高+3栋商业配套

栖境|约2.6容积率、35%绿化率

奢逸|全系一梯一户纯粹领地、南北三阳台赏景

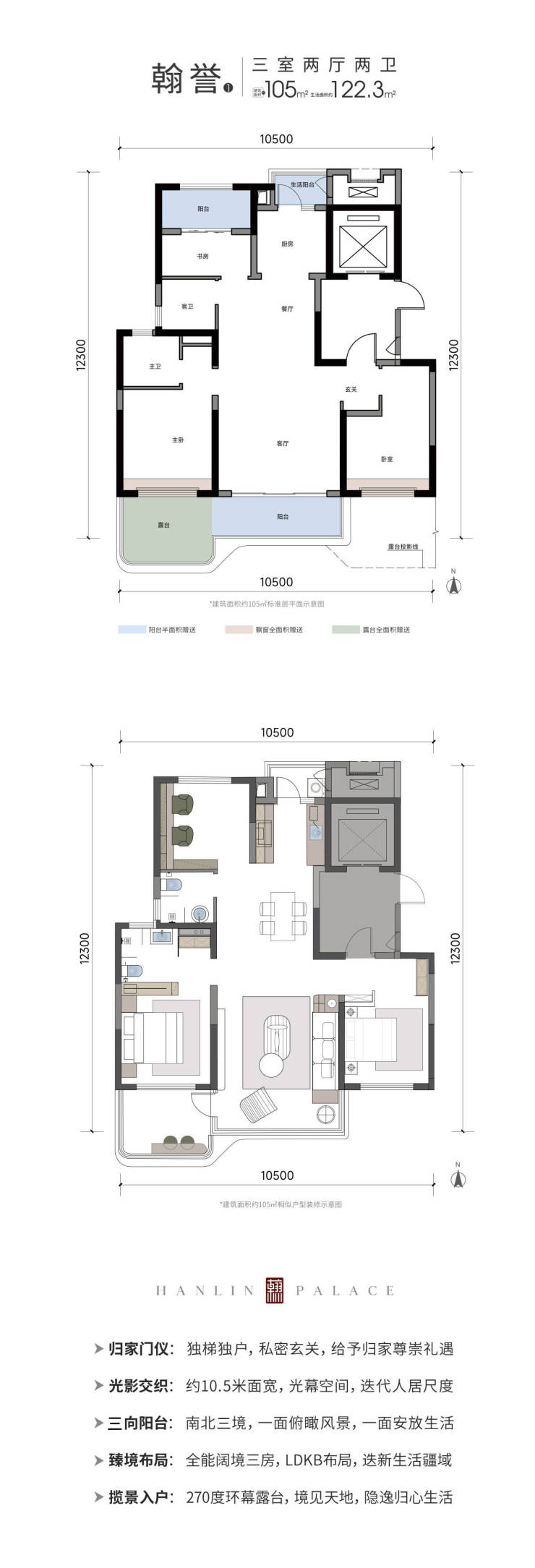
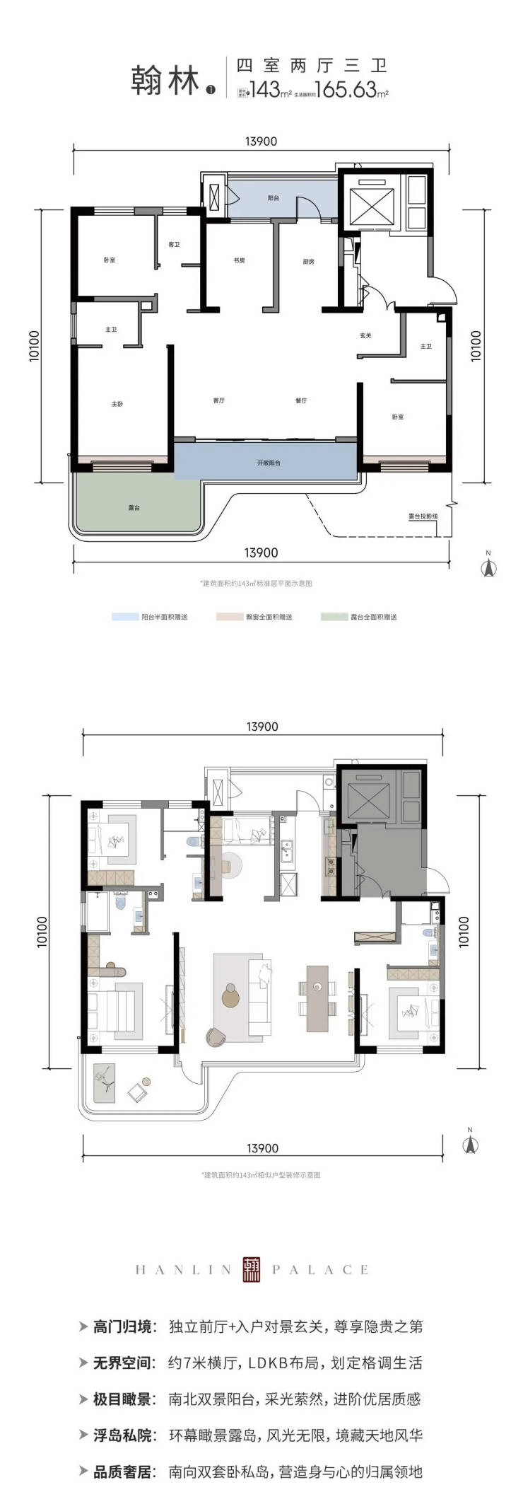
著品|建面约105-143m超四代森境住区

扎根榆林 深耕西安

聚焦高端住宅建设,2021年品牌进驻房产开发领域从拿地到建设,实现完全自有资金运作模式,“0融资、0负债、0杠杆”,实力稳健,行稳致远。

自然禀赋

渭河自然景观带、西安湖、紫薇湖、文景山公园北站站前公园集萃绿意环伺,鲜氧弥漫,封藏自然谧境

多元产业

区域内汇聚超7万家企业,外资企业400家世界500强近百个央企龙头200家、创新型中小企业数千家产业兴城,擎起时代未来

低密·以简驭繁 六大森境

以简驭繁,规划容积率仅约2.6的纯粹小高住区,极致纯粹,造诣舒居之享。社区内部打造“翰林甲第六大主题森境”,递进式漫享空间,一步一景、鲜氧充盈,写意人生的诗意画卷。

第一家通过ISO900国际质量管理体系认证物管企业

中国首批获得一级资质的物业管理企业

连续10年蝉联中国物业管理综合第一

荣获“2024中国住宅物业服务力优秀企业TOP1

“2024年新质物业品牌价值TOP1”翰林府户型鉴赏】

翰林府户型鉴赏

【翰林府】售楼处TEL:029-88777792【售楼中心】

了解最新优惠折扣价格——请拨打售楼处

声明:本文由入驻焦点开放平台的作者撰写,除焦点官方账号外,观点仅代表作者本人,不代表焦点立场。