(商铺在售)荣民中央国际▁商圈▁位置▁配套纯熟▁甲级写字楼
扫描到手机,新闻随时看
扫一扫,用手机看文章
更加方便分享给朋友
西安「荣民中央国际」
售楼处:029-88866618 (营销中心)
售楼部地址:029-88866618 (致电发送详情地址)
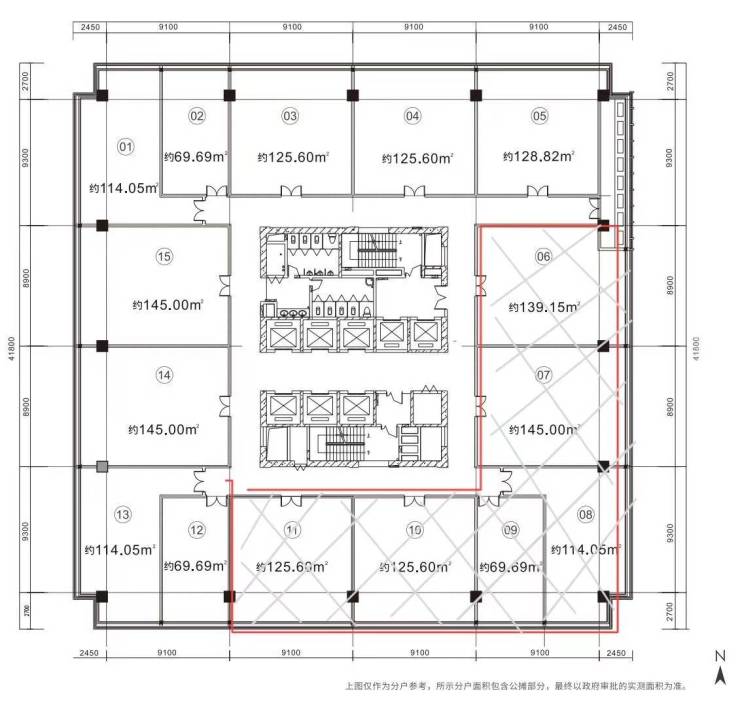
在售户型图丨项目详情介绍丨剩余房源丨项目周边配套丨详细在线解答线解答
基本信息
占地面积: 29.21亩
建筑面积: 约19万㎡ ,商业综合体7万㎡,商办3.
总户数: 300户
车位: 439个
物业公司: 自持商业
楼盘价格: 价格待定 周边房价解读
物业类型: 写字楼
区域板块: 城北
产权年限: 40年
开发商: 陕西荣民房地产集团有限公司
楼盘地址: 未央路与玄武路十字东南角地铁2号线大明宫西C口南50米
【楼栋数量】甲级写字楼1栋,超甲级270米超高层1栋;
【物业标准】5A甲级商务办公;
【面积区间】120-1700平米,单层产权分户15户,面积灵活组合;
【公 摊】公摊29%公摊率,超高得房率;
【上 下 水】标准层东南角及东北角预留上下水,设置茶歇区;
项目区域配套
【商业配套】近邻荣民龙首广场,印象城,盛龙广场、荣民时代广场、世纪金花、熙地港、大融城等多个购物中心,全方位满足企业商务生活需求;
【政务配套】未央区政府、西安市政府、未央区税务大厅、未央区教育局、陕西省工商管理局、陕西工商税务局、西安市档案局等10余家政府机关分布于项目2公里以内,为企业提供优质的政务关系网;
【荣民中央国际】售楼处TEL:029-81777782【售楼中心】
了解最新优惠折扣价格——请拨打售楼处
声明:本文由入驻焦点开放平台的作者撰写,除焦点官方账号外,观点仅代表作者本人,不代表焦点立场。
