【租售中心】商铺保利锦上▁建面约93-143㎡▁大型社区▁大户型▁特价房

搜狐焦点西安站 2025-10-15 11:42:00
用手机看
扫描到手机,新闻随时看

扫一扫,用手机看文章
更加方便分享给朋友

保利·锦上位于西安国际港务区,主打中高端改善,集央企总部、商业配套与优质景观于一体,售楼处电话029-88777723。

西安「保利锦上」

售楼处:029-88777723(营销中心)

售楼部地址:029-88777723(致电发送详情地址)

保利·锦上项目笔记

央企保利首进国港力作!

保利四大产品系列“善居”系,中高端改善作品序列

占据政经核心奥体中轴景观,尽享优质配套资源

作为西安重点打造区域,2017年,国际港务区有111个重大项目及配套设施开建。沿着一条约7.2公里的奥体中轴公园,南北一公里之内,千亿资源配套已经呈现!(地铁3号线&14号线、奥体中心“一场两馆”、8大央企总部、迈科金融小镇、万象城城市综合体、铁一中一小……)

总部经济中心:项目西南侧即为总部经济区,汇聚招商局、中国电建、华润、中冶、绿城等10大企业总部,目前已全面建成,进入招商运营阶段!

商业

保利·锦上范围内坐拥砂之船奥特莱斯、华南城购物中心、澜博跨境购物中心、大悦城购物中心(在建)、融创冰雪世界(在建)等繁华商业,时尚生活触手可及。

多元活动空间

电子围栏

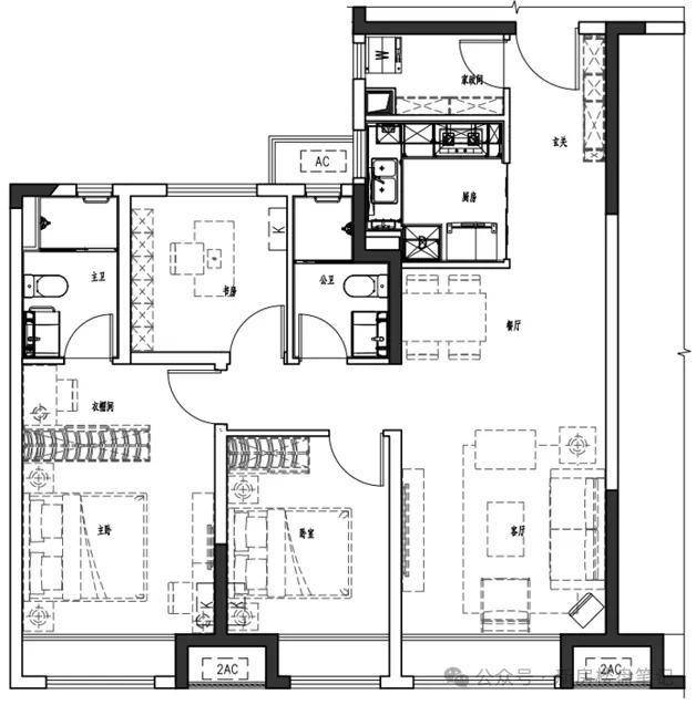
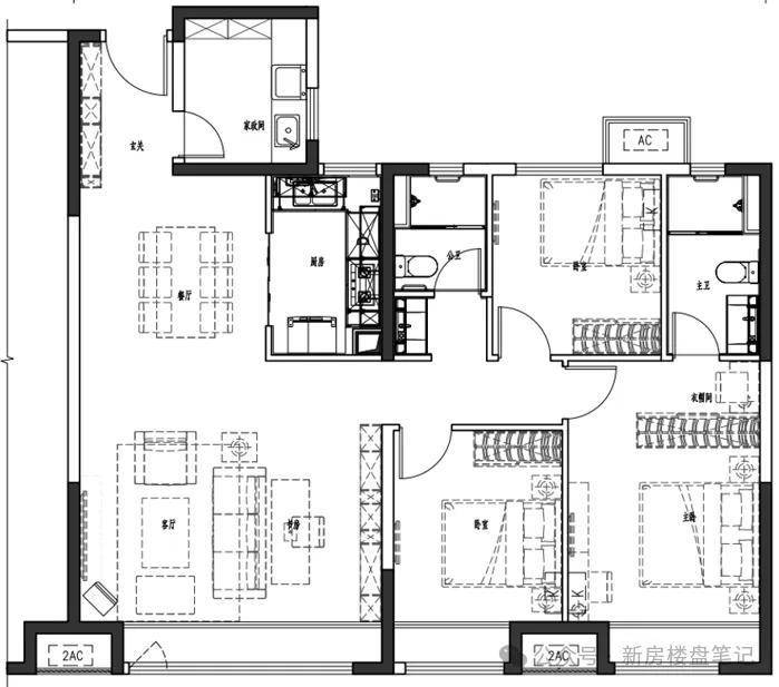
『项目产品』

北区3栋(7# 9# 11# ),共计约248套房源,层高18F、22F,2梯4户,主力户型建面约108㎡/128㎡

公摊:18%-21%

『主力户型』

108㎡—3室2厅2卫+家政间

128㎡—3+1室2厅2卫(5.4米大宽厅)

【保利锦上】售楼处TEL:029-88777723【售楼中心】

了解最新优惠折扣价格——请拨打售楼处

声明:本文由入驻焦点开放平台的作者撰写,除焦点官方账号外,观点仅代表作者本人,不代表焦点立场。