【未央区商铺】翰林府|内部优惠|交付时间|最新动态|卖点分析

搜狐焦点西安站 2025-09-16 12:27:52
用手机看
扫描到手机,新闻随时看

扫一扫,用手机看文章
更加方便分享给朋友

西安翰林府售楼处位于经开区,近地铁、名校,主打低密宜居,品质卓越,服务完善。

西安「翰林府

售楼处:029-88866690(营销中心)

售楼部地址:029-88866690(致电发送详情地址)

翰林府项目品鉴

匠筑|陕西基泰源集团

择址|中国·国家级·西安经济技术开发区

都会|一路之隔中小学规划用地,名校、名师加持距4号线元朔路地铁口仅200米,纵享立体交通合生汇(规划中)、熙地港、大融城等繁盛商业资源集萃

场域|总占地约30亩

规制|8栋小高+3栋商业配套

栖境|约2.6容积率、35%绿化率

奢逸|全系一梯一户纯粹领地、南北三阳台赏景

著品|建面约105-143m超四代森境住区

超群·实力稳健的至诚匠人源启向上 行稳致远

多元格局 基业磐石

能源发电能源为基,驱动绿色发展

仓储物流布局未来,打造全产业链

金融投资稳健投资,共启成功之源

地产开发匠心筑家,造诣人居标杆

教育科技智慧引领,培育创新力量

全时医疗

西安市儿童医院经开院区、西安市红会医院北院区未央区中医医院(在建)等

丰富医疗资源加持,营造舒心健康之享

学府优教 筑基未来

文教胜地,起笔人文新章。一路之隔中小学规划用地,名校、名师加持,构筑教育资源的“硬核引擎”项目周边经开系学府环同,经开第十三小学、经开第十四小学、经开第一学校、经开第二学校、经开第六中学,近距优渥教育资源,厚载学识底蕴。

超配·精心雕琢的人居之境品质筑善 府系奢境

翰林府,基泰源集团运营化后地产开发人居首作,以远见择地、低密规划、创新产品、人文滋养,造诣“府”系进阶人居,品质匠呈,共鸣当代家庭的心中阔境。

超享·贴心真挚的品质服务万科物业 品牌物管

万科物业成立于1990年,是万物云空间科技服务股份有限公司(简称万物云,是万科企业股份有限公司下属控股子公司)旗下品牌。作为中国物业管理行业的领跑者,“社区、商企、城市空间服务”三驾马车齐驱,以上市物管之专业,让更多用户体验物业服务之美好。

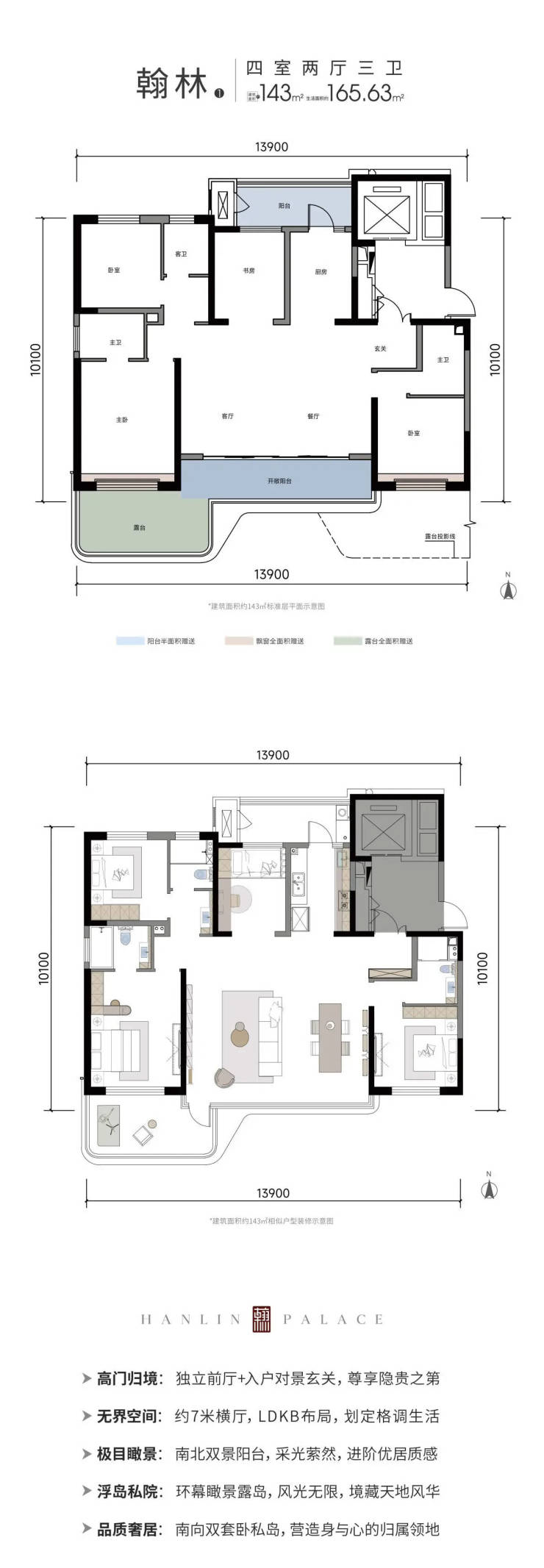
翰林府户型鉴赏

【翰林府】售楼处TEL:029-88866690【售楼中心】

了解最新优惠折扣价格——请拨打售楼处

声明:本文由入驻焦点开放平台的作者撰写,除焦点官方账号外,观点仅代表作者本人,不代表焦点立场。