西安【中海未来之境】2024年在售品质楼盘【中海未来之境】最新价格/售楼电话
扫描到手机,新闻随时看
扫一扫,用手机看文章
更加方便分享给朋友
西安【中海未来之境】售楼处 02988777723(营销中心)
户型图丨项目介绍丨房源丨_周边配套丨详细解答
售楼中心_欢迎来电咨询!预约尊享优惠折扣_匠心钜制恭迎品鉴!
如需了解最新房源信息_在售房源价格_请拨打上方售楼部电话!
温馨提示:看房需提前预约!
未来之境阅境小区项目8#、9#、11#、14#楼住房销售公告
根据我市商品住房交易政策及销售管理有关要求,现将房源明细及销售规则公布如下,请有意向购买我公司该项目住房的购房人按时进行购房登记:
一、房源状况
1.基本情况
本次开盘销售楼幢8#、9#、11#、14#楼位于西安市高新区经二十六路以东,经二十二路以西,纬三十五路以南,纬三十六路以北,全部准售住房房源共计232套,总建筑面积约34372.94㎡。其中,144平方米以上(含)房源48套,144平方米以下房源184套。
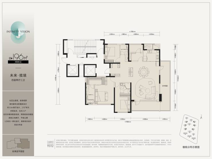
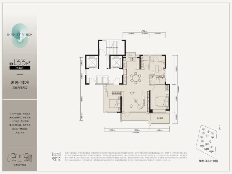
户型1.单套面积133.53㎡,三室二厅二卫户型136套;
户型2.单套面积142.87㎡,四室二厅二卫户型26套;
户型3.单套面积143.53㎡,四室二厅二卫户型15套;
户型4.单套面积143.66㎡,四室二厅二卫户型7套;
户型5.单套面积154.36㎡,四室二厅二卫户型1套;
户型6.单套面积195.03㎡,四室二厅三卫户型26套;
户型7.单套面积195.93㎡,四室二厅三卫户型21套。
2.本期一并销售的所退房源及预留样板间
本期可售房源中无所退房源及前期预留样板间。
3.本期实体样板间预留情况
本期开盘不预留实体样板间。
4.价格情况
根据西安市住房和城乡建设局商品住房价格公示项目名单价格公示情况,本次开盘销售的住房均价26092.81元/㎡,具体一房一价见西安市住房和城乡建设局官方网站、公司销售现场、微信公众号(微信号:西安中海)。
(二)车位
2.车位销售方案
(一)销售时间。本次开盘销售的全部可售产权车位计划于2025年12月30日前完成竣工验收,计划销售时间为2024年6月25日。
未来之境项目概要
未来之境简介
建筑面积约133-235㎡第四代无界人居,位处未来之瞳一环,成章路与星虹一路交汇处。设计理念同源未来之瞳,以四大国际设计师,勾勒城市、自然、山水、人文的和谐状态。
于繁华极核中,穿越青绿,艺造一方私享园。外街内园,呼应未来之瞳大剧院设计。化零为整,让山水情节在社区蔓延。近2000㎡未来生活空间,成就生活大境,黄金三角会所空间动静分明。
不以户型界定品质,只为生活专属定制。未来之境7大户型共同点,承袭户型优势,享全面进阶生活。
绿化率:35.01%
用地面积:78.58亩;
总建筑面积:177653.76平方米;
容积率:2.4;
绿地率:35.01%;
建筑密度:19.72%;
机动车停车位:1570个。
联袂起势/ 共创未来
★高新七子 与城市携手向上
中海地产深耕西安21载,打造29盘精品。以稳健的企业实力、优质的产品力和生活运营能力先后落地高新、曲江等城市核心板块,其中高新七子的先后开发,一路见证高新区的澎湃发展。
★严苛择址 双超总项目呼应
时代不断向前,中海择址的眼光也愈发挑剔。2023年,中海分别在深圳超总基地、西安超总集群瞳芯一环,竞得板块内的最后一块住宅用地,筑造中海·深湾玖序、未来之境。至此,南北双超总项目遥相呼应,成为不同城市的地标筑作。
从中心到瞳南/ 资源最盛的5.8K㎡
★资源耀势,擒握未来
高阶资源占有:“环瞳”板块公建资源投入密集,围绕交通、商业、商务、生态等“千亿”级基建投资落地,综合配套不断兑付,宜居属性不断攀升;
企业总部集合:围绕地标性建筑“未来之瞳”,十几座总部大厦项目已开工建设,高新CID的城市天际线正在“崛起”;
甄稀住宅贵壤:到2030年,高新CID板块将承载高质量从业人员人口超20万,未来预计需求20万套住宅,预计供应不到7000套,供不应求,租售两旺,市场潜力巨大。
从首排到首享/ 伟大瞳芯的2K㎡
★生活咫尺,未来至此
举步瞳芯·超总地标集群:
紧临未来之瞳,超级企业总部建筑群,20余栋超百米摩天地标建筑,未来之瞳大剧院、歌剧厅、音乐厅、实验剧场等;
举步轨交·高效纵横繁华:
地铁12号线(规划)、S13(远期规划)、地铁6号线(西电科大南校区·未来之瞳站)
举步商业·滨水坐标主场:
高新玫瑰one(在建)、永安渠商业街区(在建)、西安兰桂坊(规划)、永安万汇中心(规划);
举步教育·毗邻优教学府:
中创区在建小学、中创区待建初中
举步公园·畅享无界自然:
约450亩未来之瞳生态公园、14公里水系,60公里绿道、中轴公园,听风公园
举步医疗·三甲护航健康:
国际医学中心、高新中医医院
★超能十字,繁华极核
坐拥现在对望未来:【成章路-星虹一路】架构起瞳南板块超级十字路口,集城市级文化地标、商务地标以及高端社区、教育、医疗等资源于一体,目前正加速形成CID最好的城市界面。
穿越青绿/ 无界人居
★一园四境,未来之境
园林景观漫游1+4+8+N
1/中央水景
4/四大美学空间:水之境、花之境、森之境、光之境
8/八大景观组团:浮岛水景、溪畔绿谷、无界会客厅、日光浴场、缪斯花园、萤火仙境、森系园、吉维尼花园
N/化路为园:以创新性化路为园的设计手法整合空间,形成整体格调统一的富氧景观
★中轴为序,五进归家
礼序无界,穿越青绿
一进:形象入口
二进:穿越青绿
三进:下沉庭院
四进:景观会客厅
五进:中心花园
★黄金三角,生活大境
生活无界,近2000㎡未来生活空间空间动静分明
无界会所:健身房、瑜伽室、对弈、台球、茶室、儿童活动区、学习区、阅读区等
无界泛会所:饱览中心景观,品茗休憩
无界架空层:打破楼间界限,绿意蔓延,社交休憩
未来无界/ 人居筑品
★承袭户型优势,全面进阶生活
01. 南向极享面宽
02. 布局方正 舒适尺度
03. BLDKG方厅
04. 全南露台 适宜尺度
05. 类独立电梯厅节省公摊
06. 入户玄关 仪式感强
07. 灵动X格局
【中海未来之境】售楼处 02988777723【售楼中心】
【中海未来之境】置业经理 18602959000(微信同步)
了解最新优惠折扣价格——请拨打售楼中心电话
声明:本文由入驻焦点开放平台的作者撰写,除焦点官方账号外,观点仅代表作者本人,不代表焦点立场。
