(商铺在售)荣民中央国际▁层高▁环境▁价值分析▁开发商直销

搜狐焦点西安站 2025-10-13 15:27:00
用手机看
扫描到手机,新闻随时看

扫一扫,用手机看文章
更加方便分享给朋友

西安荣民中央国际售楼处位于城北,占地29.21亩,建筑面积约19万㎡,商业综合体7万㎡,物业自持,价格待定,周边有多个酒店和公园,配套完善。

西安「荣民中央国际」

售楼处:029-88866618 (营销中心)

售楼部地址:029-88866618 (致电发送详情地址)

基本信息

占地面积: 29.21亩

建筑面积: 约19万㎡ ,商业综合体7万㎡,商办3.

总户数: 300户

车位: 439个

物业公司: 自持商业

楼盘价格: 价格待定 周边房价解读

物业类型: 写字楼

区域板块: 城北

产权年限: 40年

开发商: 陕西荣民房地产集团有限公司

楼盘地址: 未央路与玄武路十字东南角地铁2号线大明宫西C口南50米

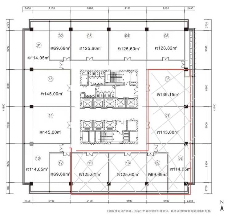
【层高及梯户比】层高3.75m,8T15户;

【外 立 面】双层Low-E中空玻璃,降噪隔音100%防紫外线辐射;

【公 摊】公摊29%公摊率,超高得房率;

【上 下 水】标准层东南角及东北角预留上下水,设置茶歇区;

项目区域配套

【酒店配套】1公里以内赛瑞喜来登、印力诺富特、亚多精选、柏瑞、美豪等多个星际酒店林立,可充分满足企业商旅需求;

【人文配套】东侧800米紧邻城北绿肺大明宫国家遗址公园,国家5A级旅游景区,臻享健康办公环境。

【荣民中央国际】售楼处TEL:029-81777782【售楼中心】

了解最新优惠折扣价格——请拨打售楼处

声明:本文由入驻焦点开放平台的作者撰写,除焦点官方账号外,观点仅代表作者本人,不代表焦点立场。