2025租售中心,荣民中央国际▁二至三环▁样板间图▁价值分析▁临街

搜狐焦点西安站 2025-10-18 19:18:00
用手机看
扫描到手机,新闻随时看

扫一扫,用手机看文章
更加方便分享给朋友

西安荣民中央国际售楼处提供详细信息,涵盖户型、价格、配套及优惠,位于二至三环,配套成熟,适合办公及商旅需求。

西安「荣民中央国际」

售楼处:029-88866618 (营销中心)

售楼部地址:029-88866618 (致电发送详情地址)

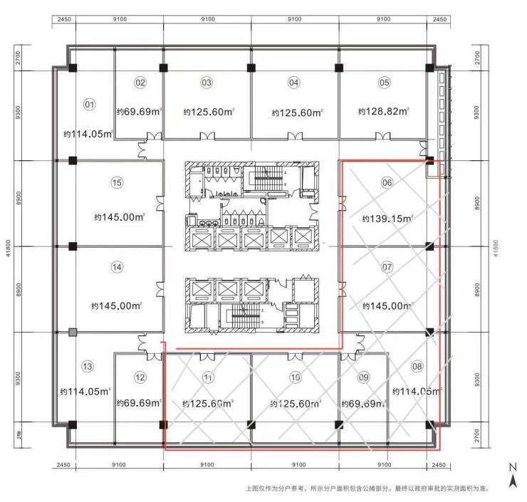
在售户型图丨项目详情介绍丨剩余房源丨项目周边配套丨详细在线解答线解答

基本信息

楼盘名称:荣民中央国际

规划户数:300户

标准层面积:1700-0m²

楼层状况:24层

物业公司:陕西荣民物业服务有限公司

车位数:439

楼盘特点:二至三环 甲级写字楼 配套纯熟 公园 医院

参考价格:15500元/m²

物业类型:办公楼

写字楼类型:标准写字楼

写字楼级别:甲级

开发商:陕西荣民房地产集团有限公司

区域位置:二至三环- 未央区- 大明宫

楼盘地址:未央路与玄武路十字东南角地铁2号线大明宫西C口南50米

【公区装修】装修公司——金螳螂(上市公司),公共区域装标3500元/㎡;

【智能安防】24小时视频监控体系、报警消防全方位监测系统;

【柱 距】8.9m-9.3m超大柱距,实现办公可利用面积最大化;

【公 摊】公摊29%公摊率,超高得房率;

【上 下 水】标准层东南角及东北角预留上下水,设置茶歇区;

项目区域配套

【酒店配套】1公里以内赛瑞喜来登、印力诺富特、亚多精选、柏瑞、美豪等多个星际酒店林立,可充分满足企业商旅需求;

【人文配套】东侧800米紧邻城北绿肺大明宫国家遗址公园,国家5A级旅游景区,臻享健康办公环境。

【荣民中央国际】售楼处TEL:029-81777782【售楼中心】

了解最新优惠折扣价格——请拨打售楼处

声明:本文由入驻焦点开放平台的作者撰写,除焦点官方账号外,观点仅代表作者本人,不代表焦点立场。