收官在即,高新CID改善红盘【中建悦庐】项目介绍,户型解析!
扫描到手机,新闻随时看
扫一扫,用手机看文章
更加方便分享给朋友
转眼间,2023年即将结束,回顾今年整个楼市,随着房地产放松政策进一步落地、购房信心逐步恢复,但市场的分化依然持续;从现状走势来看,当前国内房地产市场仍处于转型调整阶段向稳定阶段过渡时期。
房价普涨的大开发时代结束,城市内部房地产市场分化加剧。无论是政策的调整,亦或是供需关系的变化,都是对各大房企的严峻考验。
将视线拉回到西安楼市,相较于全国整体来看,西安的表现是可圈可点。热势持续,连涨8个月,涨幅再次全国第一!
据数据显示,11月西安住宅成交面积106.45万㎡,环比上涨2%,同比上涨64%,这也是继4月集中成交后的又一峰值,创下半年新高。成交均价19271元/㎡,环比上涨3%,同比上涨14%。

而从1-11月累计情况来看,西安住宅成交面积同比涨幅14.8%,与重点监测的15个一线及新一线城市相比,涨幅第一。

作为供应集中大户的高新区、港务区、浐灞生态区,在11月份2万元/㎡以上高端产品市场份额增加,成交量上涨。其中,高新区更是供应、均价、成交三项均占第一。

高新区作为西安楼市最热门的区域,有如此成绩并不让人感到意外。身为西安地价最高的区域之一,高新区凭借主导产业的快速发展、未来潜力吸引更多的资金和资源投入,以及城市发展的基础和外部环境的支持,受到各大房企和置业者的高度认可。
其中,最受关注的莫过于高新CID未来之瞳板块,也是改善置业热门区域。在这里如何选择资产配置的优选?当然是选产品力优异+黄金地段的优质房产。
说到这里,就不得不提这个特别受高净值客群喜爱的高端改善项目,就是中建悦庐。从它贯穿整年的三大关键词,就足以看出市场高度认可背后的答案。
如今的西安楼市可谓是卷字当头,外卷同行,内卷自身,尤其是在高新CID未来之瞳板块,已形成高端项目扎堆的局面,品牌开发商竞相布局,区域内汇聚各家房企战略级产品。
这场高端局的赛道越来越拥挤,中建悦庐凭何“出圈”受到精英峯层的青睐?
产品叫好又叫座、屡开屡热、网红打卡点......中建悦庐,仅自今年7月首开以来,就掀起了一场未来之瞳区域的大阵仗。
凭借优异的销售表现和良好的市场口碑,中建悦庐以热度见证,映见改善红盘的高光时刻!
中指数据显示,今年1-11月西安商品住宅单个楼盘销售榜单中,中建悦庐以48.3亿元的销售额,位居榜单TOP6的佳绩,足以可见市场对项目的高度认可,连续热销的背后则是中建综合能力的集中体现。

另外,近期中建悦庐美学体验空间在众多作品中脱颖而出,荣获2022-2023年度设博会华鼎杯金奖,这是继荣获国际WELL健康建筑标准中期认证、2023年度美国TITAN房地产奖铂金奖后,中建悦庐再度于国际舞台上创造耀眼佳绩。
不仅如此,中建悦庐项目还斩获美国国际创新设计大奖及第八届REARD全球地产设计大奖等多个荣誉奖项。值得注意的是,一个新的楼盘项目在短短几个月的时间能获得如此之耀眼成绩,在西安楼市中也是从未见过。
“一日长安,过往千年”,汉唐盛世中开放包容、交流互鉴的繁华气象一直被世人称道。当今的中建悦庐亦是如此,无论是市场端亦或是同行圈,一度有全国各地组团前去参观游学的同行,同时这里也成了网红打卡地,毕竟随手一拍就是大片。
荣誉加身,从来不是一蹴而就,而是中建长期以来对于楼盘品质和企业责任的践行,是客户对于中建稳健实力的认可、信赖,更是市场对于中建悦庐项目品牌、配套、地段、产品的公开印证!作为市场印证的实力派,更是让每一次热销都成为必然。
由此来看,中建悦庐坚定地被选择也是理所当然。
而这背后也是中建极强的市场敏锐度和其对用户习惯、区域文化深度调研形成的产品深研能力,稳健且有优秀的兑现力,给予置业者满满的安全感,也给予了其选择在中建悦庐安家的不竭动力!
没有最卷,只有更卷。
如果说中建悦庐给未来业主提供的精彩生活一部分来自于地段,而真正打动购房者的,还是中建悦庐跃升市场领先一步的产品进阶卖点,成功吸引了改善群体挑剔的目光。
进阶①跃升实景兑现——示范区眼见为实
无论是从外而言的面子,亦或是从内而言的里子,中建悦庐都以实景示范区呈现,所见即所得,远比一张图纸有说服力。
从公建化外立面、社区归家入口、实体楼样板间、下沉式庭院景观等公开透明提前展现,让人在实景中就能一探究竟,如此手笔,恰恰说明了中建悦庐项目的自信和底气。
进阶②跃升圈层私享——赋能公共空间
以安缦酒店风格定制的悦享空间,涵盖泳池、健身房、瑜伽室、禅茶室等多元休闲娱乐配套全方位植入生活中,轻松满足改善圈层活力运动、社交会面等生活所需。

在设计上更是全方位考虑,对标安缦美学空间氛围,在悦享空间的不同角度,都能有宽视野之感,可以说是将无界空间视域发挥的淋漓尽致,让人恍若置身度假酒店。
更有建面约4000m²社区商业,集餐饮、休闲、购物于一体,满足业主日常生活需求,近享繁华生活体验。
进阶③跃升产品力——改善值拉满
标准化是市场对大多数产品的要求,但对中建而言,每一部作品都必须以高品质导向的匠心精神对待,从精工细节到生活品质,中建重塑行业兑现力标准,让理想生活的蓝图在现实中上演。
因为,中建深知只有好的产品,才是能够经得住时光雕刻的作品。
在细节中见真知,无论是公共区域还是实体楼样板间,都是看得见的成本。从呈现的实景示范区来看,那种细致到每一寸肌理的讲究,更是惊艳了不少前来看房的购房者。难怪说只要看过中建悦庐的样板间,便会激发挡不住的购买欲。
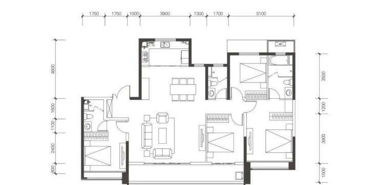
例如建面约168m²的四室两厅三卫人气户型,以全家型改善需求为考量,多元场景的户型空间刷新产品力,其舒适度可以媲美建面约190㎡的户型,以中高位面积段,享受跃升功能配置。
四开间横厅设计,超大南向面宽约16.5米,配合大面积落地窗,拉开生活视野与格局,真正做到南北通透;南向阳台和南向次卧连通,形成约9.2米奢阔景观阳台,瞰景视野广阔;双主卧套房设计,配置独立奢适卫浴,私密性、舒适感兼备,质感生活从容有序。
好消息是,目前中建悦庐收官之作建面约113-211㎡的户型,各面积段均有少量房源在售,也是全盘最后一批房源,售完再无!
声明:本文由入驻焦点开放平台的作者撰写,除焦点官方账号外,观点仅代表作者本人,不代表焦点立场。
