【雁塔写字楼招商】老三届悦湖,甲方直租-商务聚集-楼层平面图-商业金街-位置!
搜狐焦点西安站 2026-01-15 18:25:23
用手机看
扫描到手机,新闻随时看
扫一扫,用手机看文章
更加方便分享给朋友
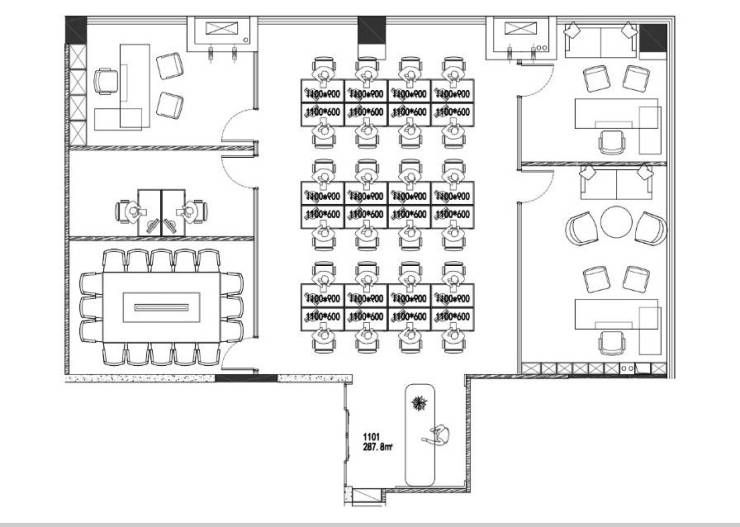
西安老三届悦湖售楼中心提供287.8平米房源,含电梯口,租金64含税,物业费10.7,可抵扣税费,支持预约。
老三届悦湖 1101室
面积:287.8平米 正对电梯口
格局:5+30人工位 带上下水
租金:64含税含室内保洁(房租可抵扣9%,物业费可抵扣6%)
物业费:10.7 空调自控
13层整层配备会议室 茶室 多媒体室 户外休闲区 免费预约使用
声明:本文由入驻焦点开放平台的作者撰写,除焦点官方账号外,观点仅代表作者本人,不代表焦点立场。
