西安保利锦上商铺▁建面约93-143㎡▁内部销控▁独家房源▁五证齐全

搜狐焦点西安站 2026-03-13 15:48:00
用手机看
扫描到手机,新闻随时看

扫一扫,用手机看文章
更加方便分享给朋友

西安保利锦上项目位于港务区,占地144.2亩,主打108㎡-128㎡户型,配套教育资源丰富,售楼处电话029-88777723。

西安「保利锦上」

售楼处:029-88777723(已认证)

售楼部地址:029-88777723(致电发送详情地址)

『项目基础信息』

项目基础信息

项目名称:保利锦上

项目地址:西安市港务区港兴三路与和泰路交汇处总

总占地面积:总占地144.2亩,南区约48.8亩,北区约95.4亩

总建面:33.81㎡

容积率:2.5

绿地率:35%

物业类型:小高、高层

车位配比:1.1.36

装修情况:毛坏2008户,南区616户,北区1392户

总户数主力:户型108㎡、128㎡

『区域篇』——西安东部新中心

国际港务区成立于2008年,是国内第一个不沿江、不沿海、不沿边的国际内陆港,同时也是首个拥有国内国际双代码的港口。是陕西省、西安市为打造内陆改革开放新高地而设立的经济先导区。

资源集合中心:项目近邻奥体中心核心区,为奥体中心板块与政经板块的交汇中心,可享受两大板块带来的丰盛配套资源!

教育

项目自身配建幼儿园,同时北地块西侧规划了中小学教育用地。且范围内陕师大陆港中小学、西安国际陆港第二小学、西安第六十四中学、陆港中学等优质教育资源环伺,助力菁英成长。

从业主实际需求出发,营销定向招商,引入“和院小课堂”的业态,由专业团队运营,为儿童在放学后至家长下班前这段时间提供课业辅导、托管、兴趣培养等活动的服务平台。

多元活动空间

电子围栏

『项目产品』

北区3栋(7# 9# 11# ),共计约248套房源,层高18F、22F,2梯4户,主力户型建面约108㎡/128㎡

公摊:18%-21%

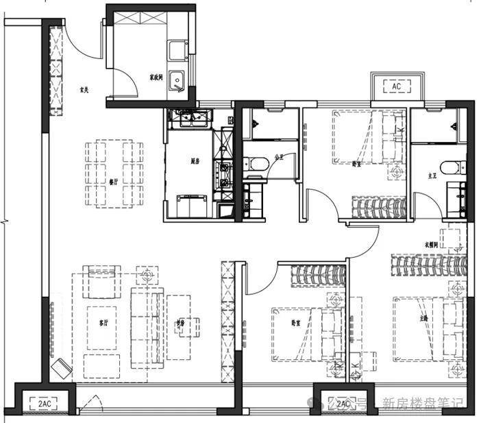
『主力户型』

108㎡—3室2厅2卫+家政间

128㎡—3+1室2厅2卫(5.4米大宽厅)

【保利锦上】售楼处TEL:029-88777723【售楼中心】

了解最新优惠折扣价格——请拨打服务热线

声明:本文由入驻焦点开放平台的作者撰写,除焦点官方账号外,观点仅代表作者本人,不代表焦点立场。