【商铺推荐】大茂城商铺/区位配套/规划/最新动态/百变空间

搜狐焦点西安站 2025-10-18 23:21:00
用手机看
扫描到手机,新闻随时看

扫一扫,用手机看文章
更加方便分享给朋友

西安大茂城售楼处提供全钢结构商业项目,涵盖商铺、公寓及购物中心,主打吸金铺、高端业态,定位稀缺资产,享便利交通与商管支持。

西安「大茂城商铺」

售楼处:029-83222232 (营销中心)

售楼部地址:029-83222232 (致电发送详情地址)

在售户型图丨项目详情介绍丨剩余房源丨项目周边配套丨详细在线解答

【项目档案】

开发商:陕西莘欣房地产开发有限公司

占地面积:15992㎡

建筑面积:150000㎡

建筑类型:全钢结构

总户数:1162

梯户比:7T31

车位比:1:1

公摊率:25%

容积率:6.5

商水商电:电费0.77/度 水费5.8/m3

交房时间:现房

物业:戴德梁行顾问式服务

22世纪建筑 百年钢构 五代传承

西安唯一全钢结构航空级玻璃幕墙建筑

科技路 地铁3号线/11号线 5大出入口上盖

超10万方沉浸式购物中心 繁华核心 稀缺资产

【项目规划】

大茂城项目用地42亩,总建面约15万方,由“一座通透水晶商业盒子、两座金字塔”构成,商场为超10万方全玻立面大型购物中心,金字塔为南北两座L型SOHO公寓和商务公寓组成。

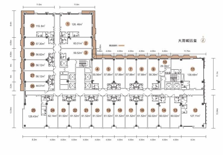
【在售产品一】7-9层吸金铺

面积区间:55-152㎡精装旺铺,最大组合面积500平米

层高:5.4M

成交价:23000元/㎡起

实得单价:11500元/平起

吸金铺将链接商场百万人潮,由大型购物中心运管统一管理、24小时灵活经营、省却高额管理费,打造西安高新商业核芯完全省心、子孙五代都受益的22世纪建筑、超越街铺的硬核资产!

容纳美容美发、SPA、中医推拿、高定、婚纱影楼、茶艺简餐、日韩品牌服饰(女)、饰品美妆、密室逃脱、电竞室、口腔医疗、VR体验、文玩店、潮牌服饰(男)、茶餐厅、儿童舞蹈/音乐/美术/体育培训、工作室、儿童服饰、私房菜、烘焙等缤纷业态

多部购物中心电梯直达,海量客群直接输送;购物中心扶梯处、直梯间、地下车库等导视系统指引,确保动线清晰;影院通道直达,客流横向导入;购物中心LED大屏、网站首页、公众号广告引流,充足曝光;所有店铺预留上下水,通燃气,满足万变业态需求;前赛格总经理等专业商管团队运营管理,全方位为吸金铺保驾护航,中小商家抢先入驻,即买即收益

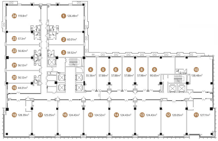
【在售产品二】10-19层空中商墅

面积区间:55-152㎡毛坯LOFT

层高:5.4M

成交价:23000元/㎡起

实得单价:11500元/㎡起

买一层享两层,全特钢构自由组合,万变全能资产

【项目配套】

自带超十万方沉浸式购物中心,全国最高27m室内瀑布,飞龙异兽,立体全息秀,潘多拉小屋,发光树,悬浮岛,水母精灵,西北最大4D影院、空中D吧、格调餐饮、星空酒吧、露台公园、自带屋顶恒温泳池、都市会客厅、健身房等全业态加持

【品牌入驻】

盒马鲜生、华为、IPHONE、星巴克、奈雪偺拑、CHOW TAI FOOK、SE7EN SHOW 、MARC O’POLO、ARMANI、UNIQLO、MLB、JUICY COUTURE、PICO、TIMBERLAND、西北最大4D巨幕影院等300余一、二线品牌强势入驻,吸金全高新

【120年寿命】

2.3万吨特种钢打造超过120年寿命建筑,从上、下水、预埋管路到外墙航空级真空玻璃,收租时长比普通建筑增加3-4倍,确保恒产世代相传,奠定家族财富基因。

【项目周边】

5公里范围内唯一的大型城市综合体,项目周边聚集约405个住宅醇熟社区,296栋写字楼,高净值人口流量150万,占全市总量的12%,位居全市第一,是真正的“流量之城”

项目旁边的华润万家单店是西北区域营业额最高的,年营业额近4.7个亿,消费需求可见一斑,坐拥西安最大密度、最高质量的商务圈层资源,尽享人流红利

【交通资源】

地铁:与3号线丈八北路站,11号线(规划)无缝接驳,3号线全线换乘可通全城,地铁8号线、5号线一站换乘,6号线/1号线2站直达

公交:202路、800路、14路、40路、225路、253路、711路、高新8号线、高新5号线等28条公交线路

自驾:丈八路,科技路双城市主干道,2公里直达2环/3环城市枢纽,20分钟通达绕城高速拥享西咸经济圈

【教育资源】

项目3公里范围:雁塔区第四小学、雁塔区第二学校、雁塔区第六小学、雁塔区第三中学、高新第一小学、高新第二小学、高新第十二小学、高新一中、新丝路软件城新规划了36所学校,三年内建成

【样板间】

55㎡样板间

138㎡样板间

【户型赏析】

【大茂城商铺】售楼处TEL:029-83222232 【售楼中心】

了解最新优惠折扣价格——请拨打售楼处

声明:本文由入驻焦点开放平台的作者撰写,除焦点官方账号外,观点仅代表作者本人,不代表焦点立场。