【租赁中心】融投汉璟台商铺→建面约113-142㎡→买房攻略→户型图→位置

搜狐焦点西安站 2025-10-11 12:21:00
用手机看
扫描到手机,新闻随时看

扫一扫,用手机看文章
更加方便分享给朋友

西安融投汉璟台项目位于二环,融合历史与现代,低密宜居,环境优美,品质高端。

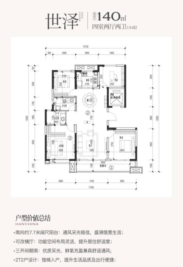
西安「融投汉璟台」

售楼处:029-88777792(营销中心)

售楼部地址:029-88777792(致电发送详情地址)

如需了解最新房源信息_在售房源价格_请拨打上方售楼部电话!

O1

品牌国匠融投 厚道笃行

融投·汉璟台项目品鉴

物业类别|70年产权

住宅占地面积|约23亩

容积率|2.56

装修情况|毛坯

物业类别|西安城融生活服务

国之巨匠 融投巨擘世家宅邸 恢弘落笔

融投·汉璟台择址西安二环主城,毗邻唐代粮仓遗址以“历史与现代交融”为基底打造兼具文化底蕴与城市活力的品质住区项目占地约23亩,容积率仅2.56规划6栋住宅(含高层、小高及洋房)以低密舒居回应主城稀缺土地价值为您提供“出则繁华、入则静谧”的理想栖居

政务枢要的二环

未央区政府直线距离约3.5公里陕西省人民检察院北区直线距离约4.0公里陕西省公安厅直线距离约4.4公里陕西省政府直线距离约4.8公里西安市政府直线约距离6.3公里

生态公园芯 相融自然的诗意

项目近享汉长安城未央宫国家考古遗址公园(约75平方公里),步行约1公里可达汉城湖国家4A级景区,约4.5公里可达大明宫遗址公园国家5A级景区,同时周边鑫苑体育运动公园、诺克运动公园、文景公园等生态公园环伺,畅享惬意森氧生活。

奢阔围合 贵隐名门之序

外院围合建筑,建筑围合中庭,融投·汉璟台以天地围合格局,彰显世家名门风范,同时2.56低容积率及匠心考究的建筑退台设计,尽享洋房社区尺度;同时科学日照规划让阳光清风自在流淌,视线几乎完全通透,

中魂西技 居礼东方大观

项目外立面整体采用浅米白色+浅灰色,以三段式建筑对称布局搭配棱镜美学设计、镜光水幕立面打造极简立面,顶部屋檐采用弧形塔冠设计显底蕴。中魂西技的设计手法,以现代形制结合东方底蕴,启幕世界审美的东方回归。

游园归家 重拾生活真意

融投·汉璟台师古造今,从东方词韵的长短平仄中走来。以一方游思清旷,物我合一的山水之境,肇新当代东方家宅理想。以东方府园美学开启一场“隐归、逐林、栖湖、会友”的居游之旅,超脱物象之胜,融洽于时间,流转于生活。

【融投汉璟台】售楼处TEL:029-88777792【售楼中心】

了解最新优惠折扣价格——请拨打售楼处

声明:本文由入驻焦点开放平台的作者撰写,除焦点官方账号外,观点仅代表作者本人,不代表焦点立场。