西安【中国铁建西派璟悦】值不值得买?周边配套齐全吗?
扫描到手机,新闻随时看
扫一扫,用手机看文章
更加方便分享给朋友
港务区首个“西派系”产品—西派璟悦在售中,将延续以往西派系TOP级产品定位标准上,引入“空中庭院”理念,打造西派系西安首座“第四代住宅”产品,今天我们一起来看看。
西安【中国铁建西派璟悦】
售楼处电话 TEL: 02989612003【售楼中心】
专属置业顾问电话:17030777773(微信同步)
✅预约看房,提前来电,安排专车接送,1v1专业服务,项目分析解读

交通方面,项目周边3条地铁环绕,目前地铁3号线、14号线已建成开通,10号线正在施工中。项目向北约300米,就是地铁14号线新寺站地铁口,向西约900米,即达地铁3号线双寨地铁口;周边的欧亚大道、元朔大道、秦汉大道等路网完善,区域内也已经开通了多路公交,出行方便。

教育资源:项目东侧一路之隔为陕师大陆港小学、陆港三幼,区域内有陆港二小、陆港初级中学等教育资源。
生态资源:项目北侧较近的有奥体中轴生态公园、南侧有新寺遗址公园,周边还有启航公园、灞河、以及文旅资源冰雪世界等。
商业方面,距离项目约800米,有在建的华润万象汇,周边有华南城、砂之船奥莱等。另外区域内也有在建的大型医疗配套,未来这些配套全部落地后,生活便利。
项目总占地82.4亩,总建面13.74万m2,绿地率35%,容积率2.5,总户数仅856户,面积为143㎡、169㎡、195㎡,均为两梯两户的纯改善高定大平层产品。
整个项目的设计均采用横向矩阵分布,保证每栋楼每一户采光的均好性,整体优化布局,让每一栋建筑在达到自然通风要求的同时,也拥有更好的景观视野。

整体社区以“首座西派空中生态作品”为主题,也就是通过当下潮流的错层设计,从而在阳台之上,打造超大挑空的空中露台花园。这种设计的好处在于,建筑的辨识度更高、户型的得房率更高、居住舒适度更高。
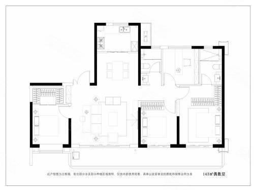
与在售的中国铁建•西派城一样,都是“全系四房”规划。而在户型设计上,西派璟悦同样十分“卷”。让我们一起看看建面约143㎡户型。
四室两厅两卫布局,四开间朝南,南向采光面达到约14.9米,还拥有超大观景阳台,通风、采光俱佳;
餐、客、厨、阳台一体化设计,拥有更大尺度的生活空间,更多元化的功能空间;
主卧套房设计,拥有独立卫生间与衣帽区,居住舒适度高。
地铁口、学校旁,奥体中轴,全系配套加持,加上央企中国铁建首进港务区,带来西派系首座“第四代住宅”,想在港务区置业的改善群体可重点关注该项目。
西安【中国铁建西派璟悦】
售楼处电话 TEL: 02989612003【售楼中心】
专属置业顾问电话:17030777773(微信同步)
✅预约看房,提前来电,安排专车接送,1v1专业服务,项目分析解读
声明:本文由入驻焦点开放平台的作者撰写,除焦点官方账号外,观点仅代表作者本人,不代表焦点立场。
