开启多重“惊喜”的半山洋房【招商雲山間】背后还有这些价值密码!
扫描到手机,新闻随时看
扫一扫,用手机看文章
更加方便分享给朋友
虽然距离年底还有一段时间,但能发现房企已经进入最后的“冲刺”时刻,新老项目争相推售,市场重回“往日热闹”。这样的“热闹”最近在一个楼盘中表现尤为明显,那就是地处航天基地少陵塬首排的半山洋房住区——招商雲山間。
西安【招商雲山間】售楼部电话 | 地址 | 售楼中心 - 24小时电话
10月31日项目首次价格公示,5天后项目售楼部正式开放,紧接着本周(11月6号)项目就开启了首次购房意向登记,吸引了诸多购房者目光。

从周末售楼部“人山人海”的画面和上线登记三小时就飘红的数据,不难看到它的受捧程度。

对比很多楼盘的“犹抱琵琶半遮面”,招商雲山間一出场就带来多个重磅级“炸弹”,这自然也成为它备受关注的原因之一。当然细究背后能发现,表面的“吸引力”之外,它背后的“价值密码”不容忽视。
多重优势支撑 奠定底气与价值
在城南不断加速发展以及近期长安“三区三线”方案出炉的大背景下,能够发现航天基地已经拥有太多发展底气,并拥有极高的价值潜力。
古今交融的区域风貌,奠定航天发展底气
对比主城诸多区域,站在历史的角度来看,航天基地的历史属性就奠定了区域的发展价值。汉代起这里就是长安达官贵人营构宅邸之处,随后更是拥有诸多世代贵族世居于此,形成集皇家园林、佛家古刹、文人墨客汇聚的长安郊区最宜居最优美最繁华的区域。
如今,大明宫-曲江池-少陵塬-揽月阁串联起西安“世界文化遗产中轴”,记录着城市的传承与变迁,也彰显着西安的历史文化特色的现代都市风貌。航天基地的少陵塬、揽月阁更成为这条文化中轴南部最重要的节点和标志性建筑。

当历史文脉价值和航天现在的区域价值相碰撞,航天基地毫无疑问呈现出更高的高端改善生活基因。
高端的航天产业林立,高净值人群聚集
作为城南发展第三极,同时也是如今城南改善置业的首选之一,航天基地也是国务院批准设立的、全国唯一以航天产业为特色的国家级经济技术开发区,拥有诸多高端航天技术产业聚集。
在航天、新能源、智能终端等国家级产业布局下,航天基地的企业研发投入强度已经位居全市第一。数据显示,在诸多产业布局下,航天基地贡献了全市7%的工业总量、贡献了全市3%的GDP、解决了约10万人就业。

同时需要注意,诸多高端航天产业技术的聚集意味进入区域生活、工作的人口素质持续呈现高端、高知、高收入特征。
领先的稀缺生态资源,促成高阶人居生活圈
作为区域价值段位的“杀手锏”,航天基地的稀缺生态价值可以说是独有资源,区域内约43%的绿化率和约46%的绿化覆盖率领先城市诸多板块,远超全市的平均水平。
领先的稀缺生态资源让整个区域内形成低密宜居氛围,而根据此前航天基地分享会上的信息来看,未来航天基地将随着发展不断扩容,居住空间增长1.5倍左右。

在居住空间扩容的背景下,航天基地将按照“科研为首、宜居为体、产业为翼、生态为底”的原则进行空间发展,居住用地则更以低容为主,呈现出更为低密、高端、改善产品,促成高端人居生活圈的进一步形成。
古今价值的叠加之下,航天基地早已成为城市新贵和高阶群体关注的重点片区,再加上区域的界面的不断成熟,占据着多重价值优势。
城市半山首排 人居格局再进阶
目前来看,航天基地新贵汇聚、贵脉土地、恢弘格局,让区域再次升级了高端人居焕新步伐,而这其中值得一提的自然是揽月阁沿线的航天豪宅带。

事实上早在几年前招商蛇口就已经在这个豪宅带上打造出招商华宇长安玺这个热门楼盘,在有前者成功的经验上,今年招商蛇口再次于此摘地,引领区域高端改善人居进阶。
招商雲山間坐落于大西安城市南阳台、城市制高点,占据着少陵塬的首排位置。
地处西安屈指可数的半山之地,地势比主城区高出约80-150米,向南为塬畔公园,高亢地势加上南向无遮挡的天然视距,北侧俯瞰全城,南侧视野一览无遗。

同时项目周边也配备相对成熟的城市生活配套。航天二中、西安交大附中航天学校满足教育需求;“四园一阁”让带来与自然共融的休闲生活体验;在建的四海唐乐街、揽月坊、龙湖天街等综合商业配套让购物需求得以满足;再加上区域内地铁4号线串联城央生活...
以城市繁华为底色,生长自然为原色,这样的地段让生活成为一种享受,繁华与自然共享,也是现阶段区域甚至整个城市都少有的产品。
在这样得天独厚的稀缺地段,招商蛇口也是使出了浑身解数打造产品,以超前设计理念塑造出前沿化的人居形态,定制招商蛇口首个“折叠建筑”社区,进一步引领区域高端改善产品的革新。

以“雲山之间,折叠城市”的设计理念出发,招商雲山間利用少陵塬的地势高差因地制宜,通过对14栋住宅的合理规划,排布北高南低的楼位布局,让出更多观山视角给居者。
同时,在整个社区的规划过程中,为了充分体现出“折叠”设计这一概念,以空间形态、建筑立面、园林景观、室内场景等多层次的效果叠加,打造出非同一般的焕新住宅。
例如:
在外立面设计过程中,契合区域的航空航天产业工业设计理念,以硬挺对称的建筑美实现如折纸般的线条造型,实用且不失美观,让整体住宅呈现轻盈灵动之感。

在园林的规划中,融入了图景折叠手法,打造出自然一体的MOUNTS生态自然空间,将少陵塬畔的坡地景观与近4.7万㎡的社区园林叠合,实现园林内外景观的互通互联,让建筑与自然融会贯通。

考虑到社区景观的观赏性和社区内部的空间功能性,为了将功能和景观最大化呈现,招商雲山間还通过以“时涧双轴”和“雲山九境”两大主题,构成了赏景、交互、休闲与一体的社区生活空间。

通过招商蛇口因地制宜的社区规划以及首个“折叠建筑”设计理念的融合,这一次招商雲山間毫无疑问引领了区域人居格局的再度进阶。
过硬的产品力 实力引领生活换新
为了将这个超前理念充分贯彻融合到项目中,给予更多人生活体验的焕新,招商雲山間也运用到了“折叠空间”的概念。
通过交错式的楼栋折叠布局,让最大楼间距达到70米左右,再加之50%的窗墙比营造的全景视野及优越的室内采光尺度,让生活与阳光之间达到真正意义上的“折叠”融合。

此外,项目还利用到新四代住宅及挑高露台的设置,打破传统建筑的僵化形态与空间规划的关系,让室内形成不同的生活体验,并塑造出更适合半山观景和洋房宜居的住宅空间。
这一点在户型的设计细节上,其实就得到了充分体现。
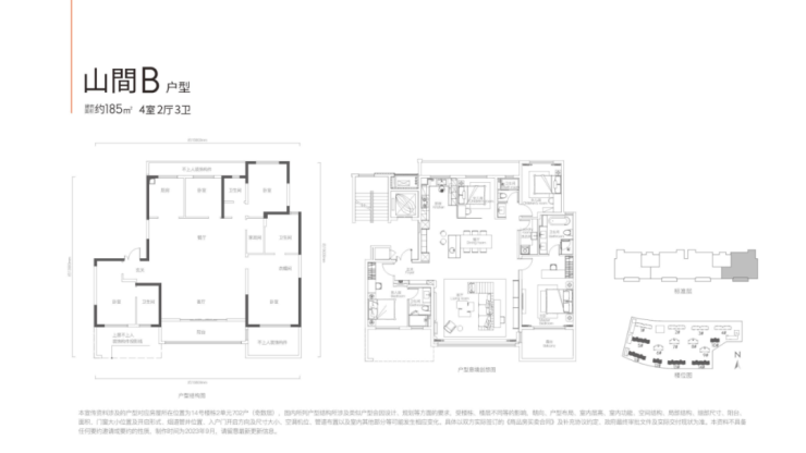
约185㎡的四室户型通过LDKB一体化的方厅设计,呈现出更优容尺度容纳生活,多元化功能融入一处空间,无论现在还是未来都增加了更多可变空间和实用效果;方厅的设计也让南向双主卧套和北向的卧室实现动静分区,增强生活舒适度;再加上全明三卫的设计,一方面避免了多位家庭成员同住的尴尬,另一方面也让整体空间更加通透。

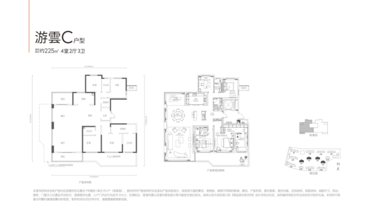
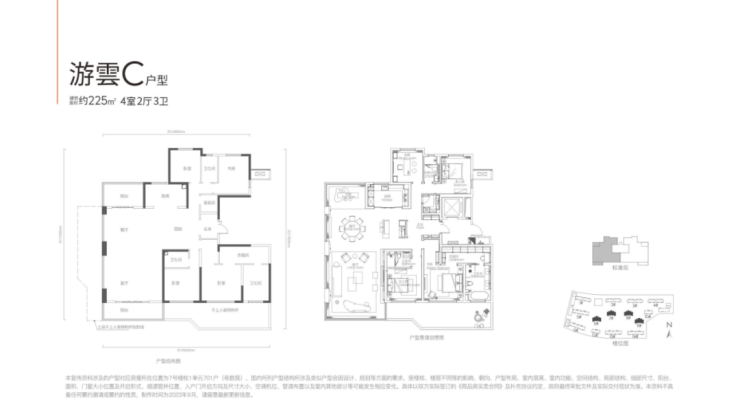
主力建面约225㎡的户型更是做到了多方位升级。

端厅的设计搭配270°光幕奢景阳台,南山风景一览无遗;奢阔的主卧套房,独立卫浴+衣帽间提升品质感和舒适度,让生活阔绰尺度无限延伸。
考虑到家庭成员不同的生活习惯,还打造出中西双厨设计,不仅能够享受到西餐的就餐互动环境,也能够感受到中餐的口味和烹调艺术。
除了每个户型的惊喜亮点之外,为了塑造更好的观景视野和效果,整个项目打造的露台均为直面南山的南向露台,赏景、实用性更胜一筹,而这样的设计更让居者感受到招商雲山間的贴心。

能够发现,作为招商蛇口西安公司打造的人居标杆产品,招商雲山間无论是所处区域、地段亦或者产品本身,都拥有强大的价值潜力,再加上目前招商蛇口在西安诸多产品的交付口碑极佳,这也为后续住宅交付提供了强有力的保障。

从多个维度来看,不可否认招商雲山間的稀缺属性和价值潜力已经不言而喻,在恰到好处的时间,于不可复制的地段,引领区域人居生活再次焕新,这样的生活体验无疑是“特殊”的存在。
目前项目建面约165-225㎡的房源正在进行登记(11月8日18时结束登记),面对这样高价值的住宅产品,建议更多购房者保持关注,感兴趣的朋友也要尽快前往登记平台进行意向登记哦!
西安【招商云山间】
售楼处电话 TEL: 02989612003【售楼中心】
专属置业顾问电话:17030777773(微信同步)
✅提前来电,安排专车接送,1v1专业服务,项目分析解读。
声明:本文由入驻焦点开放平台的作者撰写,除焦点官方账号外,观点仅代表作者本人,不代表焦点立场。
