空中露台+约17m宽幕!CID建面约211㎡改善户型,仅50套!
扫描到手机,新闻随时看
扫一扫,用手机看文章
更加方便分享给朋友
年底楼市,迎来利好消息集中释放期。
部分城市重启“认房不认贷”;央行官宣降低存量房贷利率和首付比例,一线城市和重点二线城市快速跟进。
新政频出的当下,楼市出现了新趋势:从全国到西安,大面积,逐渐成为市场主流。
1、全国主流城市,大面积变为成交绝对主力。

根据中指数据显示,2023年1-10月,合肥、西安、成都等城市120-144㎡成交套数占比增长明显;以西安来看,120-200㎡占比已达六成,成为成交主力。
2、西安房价首现分化:大面积涨小面积跌。
从国家统计局数据来看,2023年11月份,西安房价首现分化,144㎡以上的大户型,新房和二手房价均“领涨”。

2023年11月70个大中城市新房销售价格 新房方面,90㎡以下的户型价格环比下降0.2%;90-144㎡的户型环比上涨0.2%;144㎡以上的户型价格环比上涨0.4%,大面积拉动了整体新房价格。

与此同时,西安不同面积段的二手房价也出现分化:144㎡以上的户型环比涨幅与上月持平,同比上涨1.2%;90㎡及以下、90-144㎡户型,环比分别下降0.6、0.7,同比分别下跌1.4%、0.8%。
3、未来产品角逐和价值分化,一定在大面积。
市场数据已经充分印证了这个观点,根据人类居住需求层次演变和我国房地产发展趋势,越往后居住要求越高,这也意味着品质越高、空间越大、体验越舒适的产品,才是未来方向,在市场上也更具备流通性和增值性。
无论是全国还是西安,大面积的创新,一方面在于户型的精细研磨,另一方面在于社区的氛围营造。
西安高端住宅探索的引领之地,当属改善云集、竞争激烈的高新CID,刚刚荣获设博会“华鼎杯”金奖、第十四届园冶杯住区景观大区类金奖等多项国际大奖的中建悦庐,堪称其中“佼佼者”。
我们以中建悦庐建面约211㎡户型为例,重点解析其大面积的核心趋势:
1、内外兼具的【视野感】
视野,是衡量大面积优劣的重要指标。

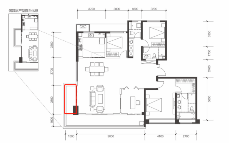
【内部配置】建面约211㎡户型内,约10.5m巨幕南向+约5.4m北向阳台,约6.3m错层挑高露台,三面采光,给了业主超阔观景条件。

【外部视野】建面约211㎡户型,处于“楼王”20#东西两侧,具备三重视野优势:第一,近1.2万㎡中央景观轴,与奢阔主大门遥遥相对;第二,北向观景视野无遮挡;第三,由于此栋楼独立形成一个水平面,所以西户向西、东户向东,亦可极目远眺。
2、随性百变的【功能性】

高品质住宅是给与生活更多可能,“3+1”灵动空间,充分考究家庭成长需求,在户型打造上突出其适配性与成长性价值,契合现在与未来不同人生阶段的住居需求,一步到位,免去置换烦恼。
如果你喜欢巨幕大厅,可以去掉“1”,那么原本建面约68㎡敞阔双厅,就可与餐客厅阳台合为一体,组成建面约90㎡巨幕方厅,这种通透性和尺度感,堪比豪宅。
当然,你也可以根据兴趣私人订制书房/茶室/家庭影院/棋牌室/瑜伽室等,生活有变化感,才越显高级。
随着西厨岛台成为高端标配,社交厨房取代传统厨房,演绎出更多功能,半开放式岛台既可做吧台,也能充当操作台或传菜口,家庭宴会、孩子生日、朋友轰趴,尽可随意布置享用。
3、超阔尺度的【尊崇感】

大面积的“大”,就是尺度感、尊崇感,这个建面约211㎡户型,“大”几乎是无处不在的。
在建面约38㎡头等舱级主卧套,这一点体现得淋漓尽致。
超3m宽的主卧大飘窗,给足了观景视野;约2.7m开间大容量衣帽间,私享奢华卫浴预留双台面、五件套卫浴空间,可以容纳男女主人同时使用,给与主人更高配置。
这种“大”,还体现在约90㎡的巨幕方厅;约6.3m错层挑高露台;可容纳十人的大餐厅;约12㎡的大厨房,且是中西厨配置。
越稀缺,越值得珍藏。整个项目,这个户型仅50套。这将是2023年,中建悦庐带给西安高阶人群的年终惊喜!
建筑立面,是社区辨识度和高级感的关键。

中建悦庐,以横向线条突出重檐气势,一体化框线打造纵向动势,大面积玻璃+银色铝板+香槟金属线条,勾勒出极具惊艳辨识度的城市封面感外立面。在蓝天白云下熠熠闪耀着的,是更尊贵的身份。
门庭显赫,是国人自古以来的追求。

这座“王府式”社区主大门,宽约40.98米、高约13.78米,溯源雕檐汉瓦,鱼鳞纹铜门、祥云纹浮雕,象征鱼龙潜跃;两重“重檐庑殿顶”,迎客区铺设汉白玉、青白石等。清明上河图雕砖画卷,以中华文明最繁盛的宋代文明瑰宝为蓝本,传承千年名仕雅趣。自此登门入室,仪式感倍增。
寸土寸金的地段,拿出了大面积来做社区景观。

中央景观近1.2万㎡,单从面积看,就在区域同类型产品中脱颖而出;采用“一府·三轴·五园·十六景”的礼制园林规划,严选自带古典气质的植物品种,精选中国黑荒料花岗岩、福鼎黑仿石砖、滨州青仿石砖等高级材质。

从规划理念、严苛选材、精工细节,皆是上品,这也是能获得国际大奖的关键。
下沉式会所,已成为高端住宅的“标配”。
项目定制的下沉式会所,【悦享空间】以安缦理念为核心,可以游泳放松、热力健身、瑜伽冥想、禅意茶室等功能,兼具古典审美和使用功能。

随着高新CID全面进入兑现期,区域价值还将加快释放,而占据CID核心地段+优配资源的中建悦庐,更具优势。
据悉,中建悦庐建面约113、130、143、168、176、211㎡产品,还有少量房源在售,年关之际,想跟紧大势或改善进阶者,可以抓一波机遇。
声明:本文由入驻焦点开放平台的作者撰写,除焦点官方账号外,观点仅代表作者本人,不代表焦点立场。
