绿城桂语未央【楼盘评测】绿城桂语未央售楼部,2024年6月西安必看品质楼盘!

搜狐焦点西安站 2024-06-10 07:20:00
用手机看
扫描到手机,新闻随时看

扫一扫,用手机看文章
更加方便分享给朋友

未央区北辰大道与永信路交汇处西南角,项目位于“城市智慧之芯”,坐享地铁、商业、教育等醇熟生活配套,配套设施齐全。

西安【绿城桂语未央】售楼处 02988777723(营销中心)

户型图丨项目介绍丨房源丨_周边配套丨详细解答

售楼中心_欢迎来电咨询!预约尊享优惠折扣_匠心钜制恭迎品鉴!

如需了解最新房源信息_在售房源价格_请拨打上方售楼部电话!

温馨提示:看房需提前预约!

占地面积:约76亩

建筑面积:约19.6万㎡

容积率:约2.8

绿地率:约35%

物业类型:住宅性质

产权年限:70年

地址:未央区北辰大道与永信路交汇处西南角

主城热土 重塑中芯格局

项目位处市府、浐灞生态区交汇核芯,是城北拓新的先锋区,定位为“城市智慧之芯”,集聚数字经济和金融、科技、文化等现代服务业,将打造成面向世界的“西安数字港”、“北城会客厅”,板块迭新磅礴启势,区域经济腾飞在即,资产价值前景可期。

未央芯繁华主场 风尚人居高地

立足主城未央芯,坐享多条地铁线、便捷交通、商圈配套、优质教育等醇熟生活配套,都市生活触手可及;紧邻浐灞生态区产业经济能级与自然生态景观,串联周边水岸公园、大明宫遗址公园等生态配套,绿意丰盛;于此,一面主城繁华,一面静谧自然,营造主城迭新人居范本。

枢纽中心——四纵三横交通路网 四条地铁接驳

紧邻北辰大道、北辰立交接驳高速,高效通达全城;4地铁接驳 【3号线约800米(已开通)、4号线(已开通)、8号线和10号线(在建)】。

生态中心——九大公园环绕 舒享鲜氧生活

紧邻国家级生态区——浐灞生态区,近揽灞河、浐河,周边滋水公园、广运潭公园、桃花潭公园、大明宫国家遗址公园等自然资源环绕,静谧水岸生态圈,生活沁人心脾。

繁华中心——坐拥醇熟商圈 畅享一站式生活

近邻Cityon熙地港、大融城、龙湖未央天街(建设中)、大明宫万达广场、世纪金花、浐灞印象城、麦德龙、华润万家等商业,畅享一站式繁华生活。

教育中心——一众名校环伺 护航锦绣未来

未央区实验学校、西安高级中学、西大附中浐灞中学、西安市第一实验学校、西航一中南校区(建设中)等名校环伺,一站式全龄优质教育,护航孩子菁英未来。

医疗中心——七大医疗配套 为健康生活护航

周边有西安市第三医院、西安市中医医院、长安医院、西安北环医院、西京医院等多家优质医疗护航,守护全家健康。

【沁心产品】

绿城西安首个DESIGN系美学作品

一脉桂语系,半部绿城史。桂语系最能代表绿城新一代作品美学调性与精工品质,每一座桂语著品都是时代的经典。桂语未央,绿城桂语系超越之作,注重客户的感受和体验,以时代和需求的变化为创新的动力,从美学、景观、场景、建筑、空间到邻里等多层面擎画全新人居格局,在真实需求基础上,打造得当、得意、得体的DESIGN系美学作品。

宽适生活体验 风尚居住的典范

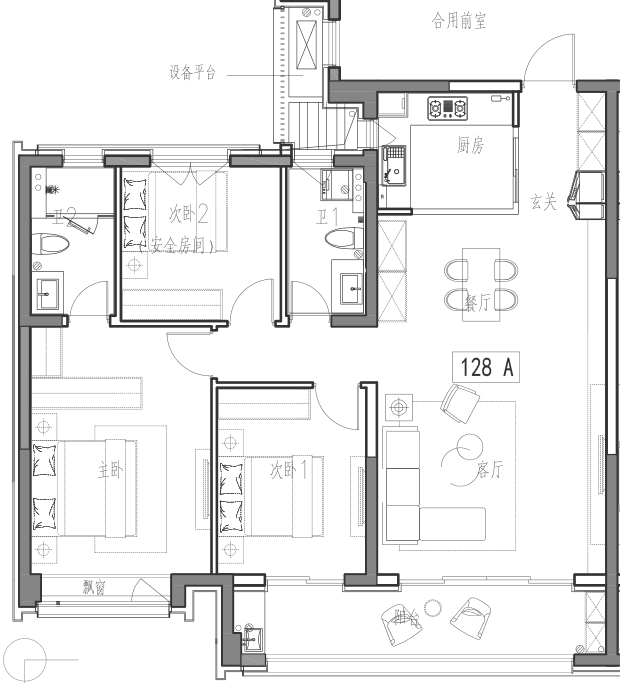
A户型| 建筑面积约128㎡ 三室两厅两卫

【礼序玄关】

入户玄关,开启归家美好幸福时光

【南三开间】

南向大面宽,采温煦阳光,沐浴自然清风

【敞阔宽厅】

门厅、餐厅、客厅合一,盛放全家人的志趣

【动静有度】

功能分区合理,秩序井然,回归生活真意

【主卧套房】

步入式衣帽间,自成一方高雅的私密天地

B户型|建筑面积约142㎡ 四室两卫

【尊崇礼遇】

尊崇入户玄关,尽显归家礼仪

【朝南臻境】

四开间朝南,光影变幻,与美和鸣

【奢阔通厅】

舒阔大横厅,盛载雅士的欢愉时光

【阔景阳台】

宽绰南向阳台,俯瞰园景,如沐春风

【主卧套房】

步入式衣帽间,藏纳时尚佳品,尽释优雅气息

【绿城桂语未央】售楼处 02988777723【售楼中心】

【绿城桂语未央】置业经理 18602959000(微信同步)

了解最新优惠折扣价格——请拨打售楼中心电话

声明:本文由入驻焦点开放平台的作者撰写,除焦点官方账号外,观点仅代表作者本人,不代表焦点立场。