【未央区商铺】翰林府|在售楼栋|户型展示|周边配套|售楼处电话

搜狐焦点西安站 2025-10-12 17:36:00
用手机看
扫描到手机,新闻随时看

扫一扫,用手机看文章
更加方便分享给朋友

西安翰林府售楼处提供详细户型、周边配套及优惠信息,打造高品质宜居社区。

西安「翰林府

售楼处:029-88777792(营销中心)

售楼部地址:029-88777792(致电发送详情地址)

在售户型图丨项目详情介绍丨剩余房源丨项目周边配套丨详细在线解答

翰林府项目品鉴

匠筑|陕西基泰源集团

择址|中国·国家级·西安经济技术开发区

都会|一路之隔中小学规划用地,名校、名师加持距4号线元朔路地铁口仅200米,纵享立体交通合生汇(规划中)、熙地港、大融城等繁盛商业资源集萃

场域|总占地约30亩

规制|8栋小高+3栋商业配套

栖境|约2.6容积率、35%绿化率

奢逸|全系一梯一户纯粹领地、南北三阳台赏景

著品|建面约105-143m超四代森境住区

超群·实力稳健的至诚匠人源启向上 行稳致远

多元格局 基业磐石

能源发电能源为基,驱动绿色发展

仓储物流布局未来,打造全产业链

金融投资稳健投资,共启成功之源

地产开发匠心筑家,造诣人居标杆

教育科技智慧引领,培育创新力量

便捷交通

地铁2、12号线(规划中)环伺距4号线元朔路地铁口仅200米西安北站约800米,多维立体路网,纵横驰骋,畅连全城

繁盛商业

首创禧悦里、合生汇(规划中)、熙地港大融城等多元商业聚集

汇聚世界潮流风尚,纵享城市品质生活圈

超配·精心雕琢的人居之境品质筑善 府系奢境

翰林府,基泰源集团运营化后地产开发人居首作,以远见择地、低密规划、创新产品、人文滋养,造诣“府”系进阶人居,品质匠呈,共鸣当代家庭的心中阔境。

质感·奢感公区 精工筑境

匠心哲思产品细节,采用国际一线品牌,凝练居住美学的隐奢。打造精装归家大堂、品质地库、电梯间等,超配规制,奢华入微,为时代层峰营造极具品质感的居住体验。

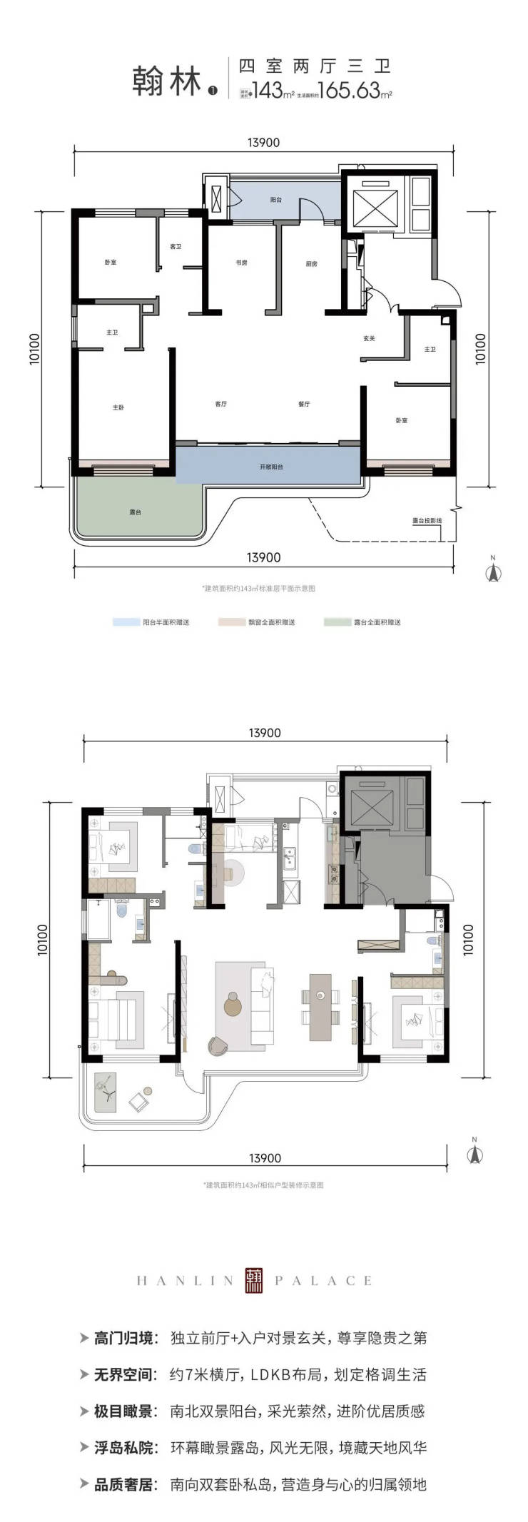
翰林府户型鉴赏

【翰林府】售楼处TEL:029-88777792【售楼中心】

了解最新优惠折扣价格——请拨打售楼处

声明:本文由入驻焦点开放平台的作者撰写,除焦点官方账号外,观点仅代表作者本人,不代表焦点立场。