2025租售中心,荣民中央国际▁层高▁样板间图▁售楼中心▁甲级写字楼

搜狐焦点西安站 2025-10-03 15:09:00
用手机看
扫描到手机,新闻随时看

扫一扫,用手机看文章
更加方便分享给朋友

西安荣民中央国际售楼处位于二至三环,规划300户,甲级写字楼,配套成熟,价格15500元/㎡,物业公司为陕西荣民物业,售楼处电话029-81777782。

西安「荣民中央国际」

售楼处:029-88866618 (营销中心)

售楼部地址:029-88866618 (致电发送详情地址)

基本信息

楼盘名称:荣民中央国际

规划户数:300户

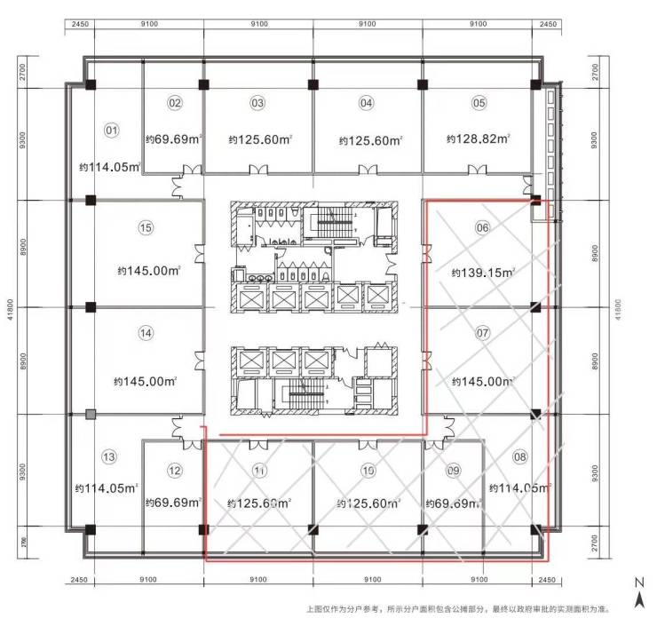
标准层面积:1700-0m²

楼层状况:24层

物业公司:陕西荣民物业服务有限公司

车位数:439

楼盘特点:二至三环 甲级写字楼 配套纯熟 公园 医院

参考价格:15500元/m²

物业类型:办公楼

写字楼类型:标准写字楼

写字楼级别:甲级

开发商:陕西荣民房地产集团有限公司

区域位置:二至三环- 未央区- 大明宫

楼盘地址:未央路与玄武路十字东南角地铁2号线大明宫西C口南50米

【公区装修】装修公司——金螳螂(上市公司),公共区域装标3500元/㎡;

【智能安防】24小时视频监控体系、报警消防全方位监测系统;

【柱 距】8.9m-9.3m超大柱距,实现办公可利用面积最大化;

【公 摊】公摊29%公摊率,超高得房率;

【上 下 水】标准层东南角及东北角预留上下水,设置茶歇区;

项目区域配套

【金融配套】周边招商银行、中国银行、交通银行、建设银行、邮政储蓄银行等20多个网点环伺,方便企业金融往来;

【商业配套】近邻荣民龙首广场,印象城,盛龙广场、荣民时代广场、世纪金花、熙地港、大融城等多个购物中心,全方位满足企业商务生活需求;

【荣民中央国际】售楼处TEL:029-81777782【售楼中心】

了解最新优惠折扣价格——请拨打售楼处

声明:本文由入驻焦点开放平台的作者撰写,除焦点官方账号外,观点仅代表作者本人,不代表焦点立场。