招商雲山间-怎么样?项目介绍【招商雲山间】周边配套详情!户型图鉴赏!
扫描到手机,新闻随时看
扫一扫,用手机看文章
更加方便分享给朋友
招商雲山间 位于曲江“南阳台”少陵塬上,属于西安航天产业国家级开发区。
依坡就势,从地脉出发,运用国际折叠建筑理念,营造出“雲山折叠之旅”。
根据空间类型划分,对稀缺资源的最大化使用进行可行性推演,打造一个活力现代的魅力空间先进样本,旨在提高人们对于城市生活、社区生活、空间融合、角色融合的居住幸福指数,让生活回归生活。
基本信息
项目名称:招商雲山间
开 发 商:招商蛇口
产品类型:城市半山洋房
装 修:毛坯
均 价:待定
产权年限:70年
物业公司:招商积余
规划规模:建面约165-225㎡ 14栋
配套信息
1 双会所 | 为生活打开更多可能
雲山間,无界会客厅&森涧下沉庭院双会所,打造雲山艺术场、雲山书社、雲山小剧场、雲山木屋、功夫与茶、雲山茶室、雲山之夜......对生活空间的社交想象,置入于“折叠双会所”,置身雲間,恍若山间的自由感油然而生。
2 商业配套 | 以东长安街为核心,打造高端商务中心
根据航天基地“十四五”规划,将重点建设城市综合体、特色商业街、高品质酒店、夜景亮化带提升、夜经济示范区等城建配套项目;到2025年,区内将建成商业商务商服载体140万平方米,实现社会消费品零售总额150亿元,以科、产、城、人、文、景协同发展的格局,高质量打造世界一流航天科技新城,在日常购物、生活方面,为您提供多种选择。
3 教育配套 | 学府林立,氤氲书香气
文教,是城南的DNA。航天基地以建设“现代化教育强区”为目标,三年来17所学校陆续建成投用,新增学位16350个。航天基地学校数量已达39所,学生总数近3.2万,公办学校(园)高层次人才占比达22%,组建“名校+”12个,被评为省级智慧教育示范区。区域内,不乏西安交大附中航天学校、航天二中等优质学府。
4 天然氧吧 | 与自然共融,超“后曲江”低密体验
东长安街以南,以揽月阁为轴心的区域,正是航天基地近年重点打造的低密高端住区。区域内,依山就势打造低密居住环境,目光所及皆是绿黛远山,是静心休养的佳境。
此外,共享航天基地8大公共城市公园,60+处口袋公园,享受“300米见绿、500米见园、步行5分钟可达公共绿地”与自然共融的人居体验。
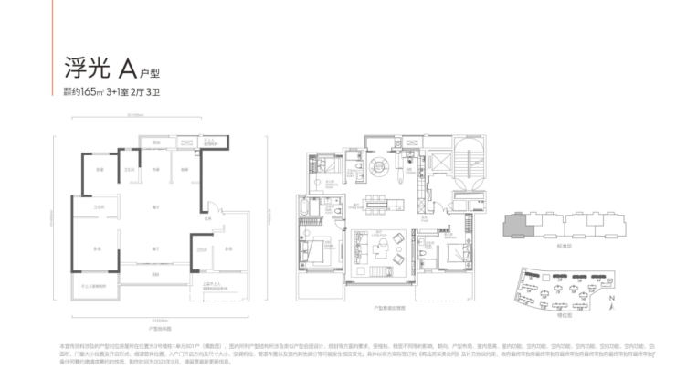
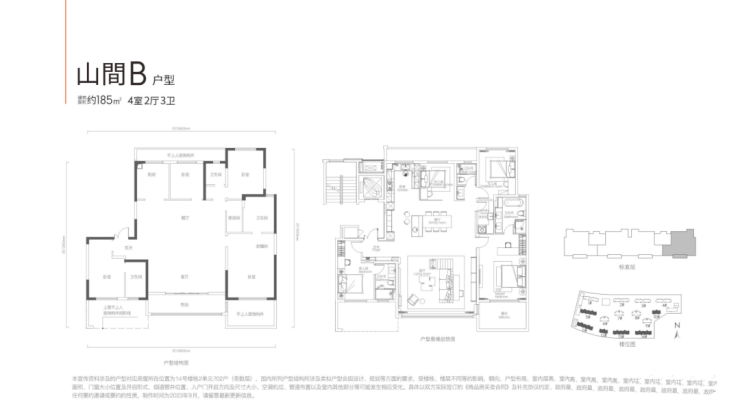
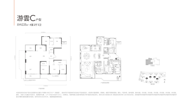
户型图



项目效果图
声明:本文由入驻焦点开放平台的作者撰写,除焦点官方账号外,观点仅代表作者本人,不代表焦点立场。
