保利锦上商铺(租赁中心)▁建面约93-143㎡▁内部销控▁开发商推广直销▁特价房
扫描到手机,新闻随时看
扫一扫,用手机看文章
更加方便分享给朋友
西安「保利锦上」
售楼处:029-88777723(已认证)
售楼部地址:029-88777723(致电发送详情地址)

『项目基础信息』
项目基础信息
项目名称:保利锦上
项目地址:西安市港务区港兴三路与和泰路交汇处总
总占地面积:总占地144.2亩,南区约48.8亩,北区约95.4亩
总建面:33.81㎡
容积率:2.5
绿地率:35%
物业类型:小高、高层
车位配比:1.1.36
装修情况:毛坏2008户,南区616户,北区1392户
总户数主力:户型108㎡、128㎡

『品牌篇』
中国保利集团是国务院国资委管理96家大型央企之一,连续五年上榜《财富》世界500强,2021年世界五百强排名174位。
保利2012年首入古都西安,2019年销售额破百亿,始终与大西安共发展,截止2020年共完成了品牌四大产品系的全城布局,开发优质项目逾16个,覆盖经开、沣东、高新、曲江、浐灞等重点区域,目前已有超10万的庞大业主基数。

商业
保利·锦上范围内坐拥砂之船奥特莱斯、华南城购物中心、澜博跨境购物中心、大悦城购物中心(在建)、融创冰雪世界(在建)等繁华商业,时尚生活触手可及。

多元活动空间


电子围栏

『项目产品』
北区3栋(7# 9# 11# ),共计约248套房源,层高18F、22F,2梯4户,主力户型建面约108㎡/128㎡
公摊:18%-21%
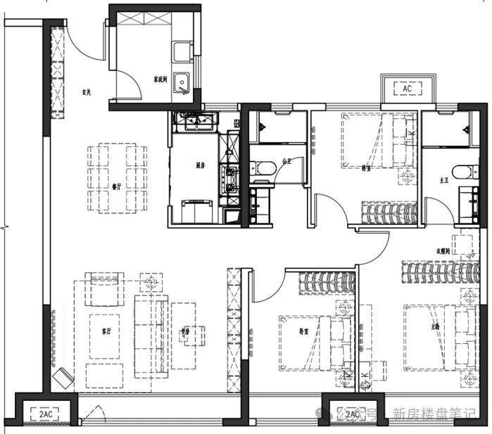
『主力户型』
108㎡—3室2厅2卫+家政间
128㎡—3+1室2厅2卫(5.4米大宽厅)
【保利锦上】售楼处TEL:029-88777723【售楼中心】
了解最新优惠折扣价格——请拨打服务热线
声明:本文由入驻焦点开放平台的作者撰写,除焦点官方账号外,观点仅代表作者本人,不代表焦点立场。
