航天独栋商业-豪布斯卡商铺-西安商铺-层高-商铺面积-优惠电话
扫描到手机,新闻随时看
扫一扫,用手机看文章
更加方便分享给朋友
西安「豪布斯卡商铺」
售楼处:029-88866690(营销中心)
售楼部地址:029-88866690(致电发送详情地址)
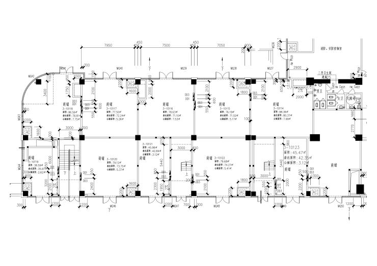
在售户型图丨项目详情介绍丨剩余房源丨项目周边配套丨详细在线解答
售楼中心_欢迎来电咨询!预约尊享优惠折扣_匠心钜制恭迎品鉴!
如需了解最新房源信息_在售房源价格_请拨打上方售楼部电话!
2.3 公共设施配套
医疗
项目三公里范围内有两所甲级医院:西安市人民医院、西安航天总医院。


01 项目概述
1.1 豪布斯卡(HOPSCA)
豪布斯卡(HOPSCA)是城市中的居住、办公、商务、出行、购物、文化娱乐、社交、游憩等各类功能复合、相互作用、互为价值链的高度集约的街区建筑群体。HOPSCA是六大业态英文首字母的集合:酒店(Hotel)、办公(Office)、公园(Park)、商场(Shopping mall)、会议(Convention)、公寓(Apartment)。
主要建设内容包括:西办公楼、酒店、东办公楼、办公楼D、办公楼E及沿街商业裙房。
陕西旅游集团总部大楼(西办公楼)已建成并投入使用,集团与各子公司已入驻办公。
2.5商铺实景图 独栋商铺,可餐饮(面积1400㎡)
【豪布斯卡商铺】租售中心TEL:029-88866618【租售中心】
了解最新优惠折扣价格——请拨打租售中心
产品类型

声明:本文由入驻焦点开放平台的作者撰写,除焦点官方账号外,观点仅代表作者本人,不代表焦点立场。
