【租售中心】紫薇时光云瀚商铺—独家房源—改善好房—周边配套—物业
扫描到手机,新闻随时看
扫一扫,用手机看文章
更加方便分享给朋友
西安「高科紫薇时光云瀚」
售楼处:029-88777792(营销中心)
售楼部地址:029-88777792(致电发送详情地址)
在售户型图丨项目详情介绍丨剩余房源丨项目周边配套丨详细在线解答
售楼中心_欢迎来电咨询!预约尊享优惠折扣_匠心钜制恭迎品鉴!
如需了解最新房源信息_在售房源价格_请拨打上方售楼部电话!
名称:高科紫薇时光雲瀚
项目地址:西安高新CID瞳南板块 创智路以西 创智一路以东
占地面积约:60亩
总建筑面积:13.67万㎡
容积率:约2.4
楼栋数:11栋
面积段:112㎡、126㎡、143㎡
建筑类型:112㎡、126㎡户型为高层,143㎡户型为小高层
西安高科地产有限公司(以下简称“公司”)诞生于西安高新区“双中心”建设全面启动、高科集团“转型升级、创新发展”全面加速之际融合了“高新地产、紫薇地产、丝路金融”三家公司优势叠加,强强互补,是位居中国服务业企业500强的西安高科集团旗下的全资子公司,具有国家一级开发资质的大型国有复合型房地产开发企业,
全维立体交通 极速畅达全城
地铁:6号线、12号线(规划中)、15号线(在建)
云巴:高新云巴
快速干道:成章大道、三星快速干道
星级酒店式大门社区的超级界面
超60米长仪式门庭,气场强大,云卷花舒般的半围合形态,两侧弧形的景墙设计石材与金属线条的灵动交织,营造出尊崇归家体验。
高科物业 国家一级
西安人的生活管家,总服务面积超3000多万㎡,为约65万人提供高品质、多元化的全生命周期物业服务,2024蝉联“陕西省物业服务企业综合实力TOP1”
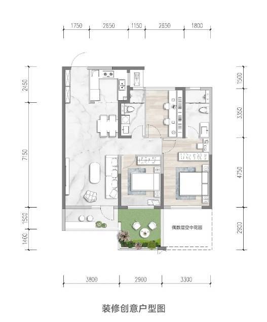
建筑面积约126平米三房两厅两卫
U型厨房设计:操作动线合理化,美好烹饪时光LDKB一体化阔厅:餐客联厅,宽境空间拓展南向宽幕:三面宽向南,尽享阳光生活双露台:大露台赠送面积,养花种草的诗意花园南向宽境阳台:俯瞰一园盛景,赋予生活的功能留白豪华主卧套房:主卧套房设计,步入式衣帽间
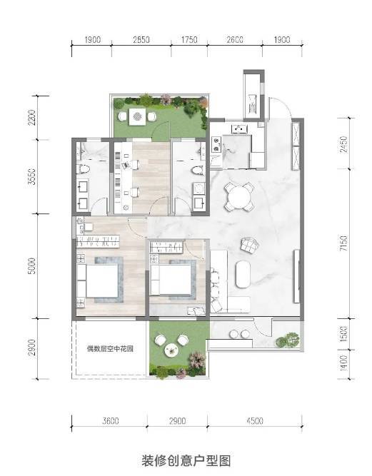
建筑面积约143平米三房两厅两卫
独立花园归家:尊享入户花园,私享宽敞入户空间LDKB一体化阔厅:餐客联厅,超宽客厅格局,尊崇宽阔南向宽幕:南向四开间,采光通风俱佳奢阔露台:南向大露台,品茗、聚会皆可豪华主卧套房:主卧套房设计,独立主人空间,彰显不凡身份
建筑面积约112平米三房两室两厅
U型厨房设计:操作动线合理化,美好烹饪时光LDKB一体化阔厅:餐客联厅,宽境空间拓展南向宽幕:三面宽向南,尽享阳光生活方正通透:南北通透,空气最大化流通,动静合理分区豪华主卧套房:主卧套房设计,步入式衣帽间
【高科紫薇时光云瀚】售楼处TEL:029-88777792【售楼中心】
了解最新优惠折扣价格——请拨打售楼处
声明:本文由入驻焦点开放平台的作者撰写,除焦点官方账号外,观点仅代表作者本人,不代表焦点立场。
